მათთვის, ვინც განიხილავს ბინის შეძენას გრძელვადიან აქტივად, Artex Parkline წარმოადგენს საუკეთესო გამოსავალს ბათუმის უძრავი ქონების ბაზარზე. პროექტი, რომელიც განთავსებულია ანგისას პირველ შესახვევში, ზღვიდან 500 მეტრში, გამოირჩევა 26-სართულიანი თანამედროვე დიზაინითა და ფართო ტერასებით. ეს ბიზნეს-კლასის ეკოსისტემა აკმაყოფილებს ექსპატებისა და ოჯახების ყველა მოთხოვნას უშუალოდ კომპლექსის ტერიტორიაზე არსებული SPA-ცენტრის, საბავშვო ბაღისა და სათამაშო მოედნების ხარჯზე. აეროპორტთან სიახლოვე და რაიონის ტურისტული განვითარება უზრუნველყოფს მაღალ ინტერესს ქირავნობაზე. დაცული ტერიტორია და მუდმივი უსაფრთხოების სერვისი კი დამატებით გარანტიას აძლევს მესაკუთრეებს მშვიდი და კომფორტული საცხოვრებელი გარემოს შესანარჩუნებლად.
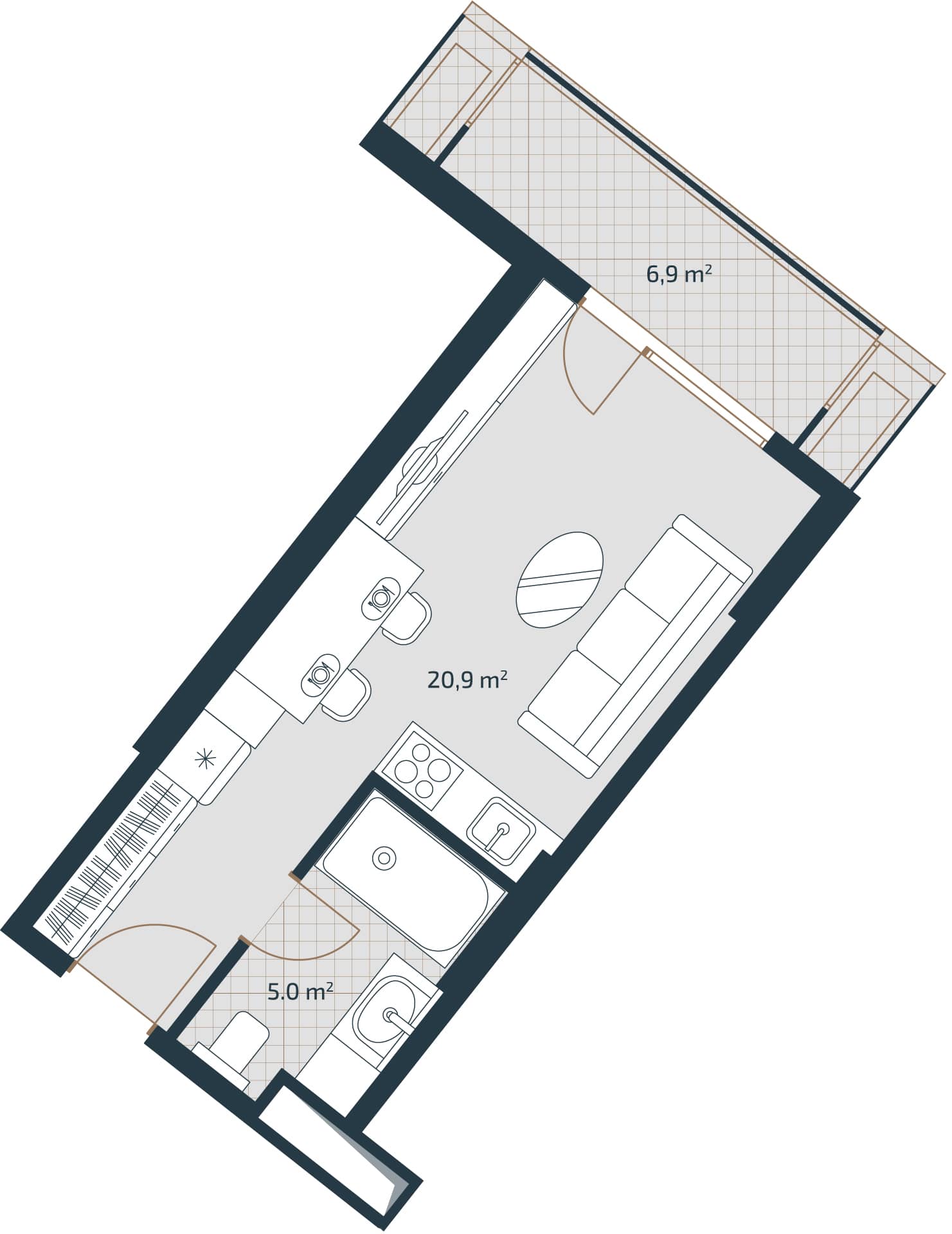
32.8 კვადრატული მეტრი ფართობის მქონე ეს კომპაქტური ბინა იდეალურად პასუხობს ბათუმის მოკლევადიანი ქირავნობის ბაზრის მოთხოვნებს. მსგავსი ფორმატი განსაკუთრებით მიმზიდველია ტურისტებისა და ექსპატებისთვის, რომლებიც ეძებენ ფუნქციონალურ საცხოვრებელს განვითარებულ აეროპორტის რაიონში. პროექტის შიდა ინფრასტრუქტურა და ზღვის სიახლოვე უზრუნველყოფს ამ მეტრაჟის მაღალ ლიკვიდურობასა და მუდმივ მოთხოვნას.
შენობის მე-23 სართულზე მდებარეობა წარმოადგენს სტატუსის სიმბოლოს და უზრუნველყოფს საუკეთესო ინსოლაციას დღის განმავლობაში. სიმაღლე გამორიცხავს ვიზუალურ დაბრკოლებებს და საშუალებას გაძლევთ სრულად დატკბეთ Artex Parkline-ის არქიტექტურული ტერასების ხიბლით. ეს ზონა განკუთვნილია მათთვის, ვინც აფასებს სიმშვიდეს და პანორამულ სივრცეებს ბათუმის თავზე.
კონკრეტული ბინის ფასი განისაზღვრება $51 496 დოლარით, რაც ხაზს უსვამს ბალანსს პრემიუმ ხარისხსა და ხელმისაწვდომ შესვლის ზღურბლს შორის. ამ ბიუჯეტით მესაკუთრე იღებს არა უბრალოდ კვადრატულ მეტრებს, არამედ სრულფასოვან სერვისულ გარემოს SPA-ცენტრითა და კოვორკინგით. გრძელვადიან პერსპექტივაში ეს უზრუნველყოფს სტაბილურ მოთხოვნას როგორც მყიდველების, ისე დამქირავებლების მხრიდან.
საბოლოო ჯამში, აღნიშნული საცხოვრებელი სივრცე აკმაყოფილებს ლიკვიდურობისა და კომფორტის ყველა კრიტერიუმს, რასაც ბიზნეს-კლასის მომხმარებელი ითხოვს. ზღვიდან 500 მეტრში არსებული ეს ინფრასტრუქტურა ზრდის ქონების ღირებულებას. ობიექტის მიმდინარე სტატუსისა და ტექნიკური დეტალების დასაზუსტებლად შეგიძლიათ ისარგებლოთ სპეციალისტის კონსულტაციით.


