The project is structured as a cohesive vertical neighborhood, integrating private living spaces with professionally managed communal amenities. Controlled access points, comprehensive video surveillance, and landscaped car-free courtyards form a secure perimeter for daily life. Ground-floor commercial premises and dedicated fitness zones ensure that essential services are available without leaving the residential territory. This integrated ecosystem reduces dependency on external transit and strengthens the internal value of the housing stock.
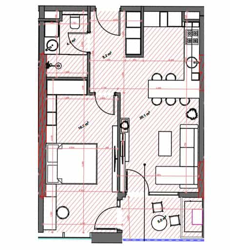
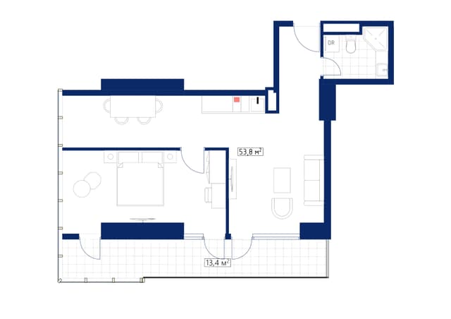
Properties around 50.9 m² represent the most liquid segment within the secondary market, bridging affordability and spatial adequacy for diverse buyer profiles. The format satisfies requirements for both permanent residency and medium-term corporate leasing. International companies and freelance specialists consistently prioritize this scale due to its optimal ratio of cost to functional utility. High transaction velocity in this category ensures rapid capital recovery and minimized holding periods for sellers.
Positioning the residence on the 39 floor unlocks expansive panoramic vistas, framing uninterrupted sightlines toward the coastline and urban skyline. The elevation maximizes natural daylight penetration through vertical glazing, reducing reliance on artificial lighting during daytime hours. Enhanced atmospheric conditions above ground level improve ventilation quality and minimize particulate accumulation. This tier appeals to occupants who prioritize visual openness and elevated environmental standards in their daily environment.
The listed cost of $86,530 reflects a structured valuation model that balances spatial utility with premium residential specifications. This pricing framework accounts for ready-made finishes, integrated kitchen configurations, and access to controlled communal amenities. Buyers receive a transparent cost-to-feature ratio that eliminates post-purchase renovation expenses. The valuation aligns with regional market benchmarks for high-rise properties delivering operational convenience from day one.
Spatial efficiency, acoustic comfort, and district connectivity converge within a single residential framework designed for modern urban requirements. Ready-made finishes and optimized glazing reduce post-acquisition adjustments while maximizing natural illumination. Stakeholders reviewing long-term occupancy models can access configuration details and payment frameworks through direct consultation channels.



