Horizon Grand Residence stands as a premium residential complex positioned on the first shoreline of the Black Sea in the central district of Batumi. The project combines a scarce coastal location with fully finished apartments, offering a turnkey solution for both residence and investment. Every unit features panoramic views of the sea and city skyline, supported by modern design elements such as mirrored ceilings and high-quality furnishings from leading manufacturers. The complex addresses the demand for elite seaside housing with direct access to the embankment, tourist infrastructure, and business activity, ensuring high liquidity in the secondary market.
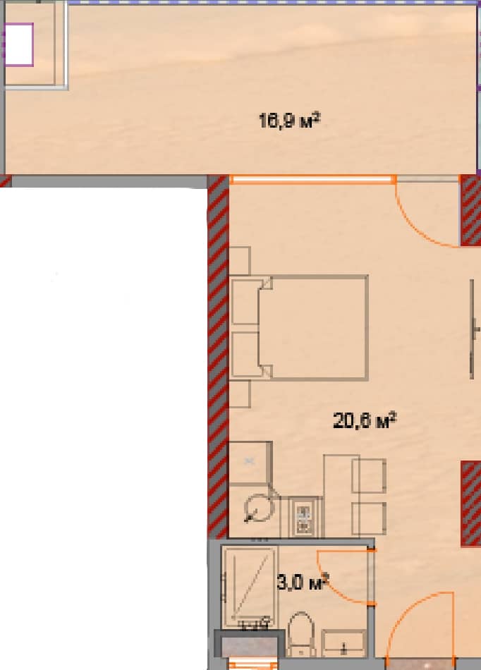
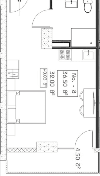
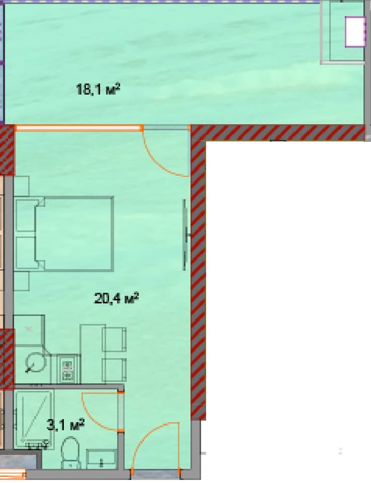
Apartments with an area of 33.2 m² represent the most liquid segment for rental strategies within the complex. The turnkey furnishing with high-quality furniture and air conditioning ensures the unit is ready for tenants upon purchase. Located on the first line of the sea, this compact format matches the preferences of solo travelers and couples, minimizing vacancy periods while providing full access to the premium amenities and panoramic views of the Black Sea.
An apartment situated on the 10 floor offers an optimal balance between view characteristics and comfort of access. This level provides a favorable perspective of the Black Sea and city skyline while maintaining convenient connectivity to the building’s services. In Horizon Grand Residence, middle floors are often preferred for their equilibrium of height and practicality, complemented by fully furnished interiors and a prime location on the first shoreline of Batumi.
A cost of $36,354 for this apartment includes the benefits of a turnkey solution in the center of Batumi. The price covers furniture, appliances, and designer finishes, allowing immediate rental or residence. The first-line position ensures sustained demand, which justifies the investment through potential occupancy rates. The absence of intermediary commissions further optimizes the total acquisition cost for the buyer.
Horizon Grand Residence ensures a high standard of living through its location, finishing quality, and comprehensive furnishing. The project addresses the needs of buyers focused on rental income or personal residence, leveraging the advantages of the central seafront and transparent purchase terms.


