The Lagoon Resort project is a modern development in the premium real estate segment of Adjara, led by the experienced Horizons Group. This developer is recognized for its systematic approach to the New Boulevard area, ensuring high trust from international buyers. The complex is designed as a mixed-use format where residential spaces are complemented by a full cycle of hotel services. Located on the front line, the project addresses the shortage of high-quality construction sites in Batumi. Entry into this project at the current implementation stage allows investors to secure a liquid asset before the district’s infrastructure is fully completed.
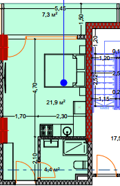
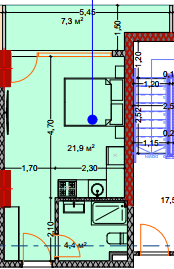
Choosing a studio or compact apartment of 34.7 m² in Lagoon Resort is a rational decision for private investors. This size is ideal for hotel-type management, where functionality and location take precedence over total space. The layout is designed to utilize every meter effectively, making it a perfect entry point into the premium real estate segment on the first coastline.
Positioned on the 5 floor, this apartment offers a balanced height that combines a sense of privacy with easy access to all services. This middle-level placement provides a standard resort elevation, allowing for pleasant perspectives of the surrounding New Boulevard architecture. It is an optimal choice for those who seek a quiet environment while remaining connected to the complex’s ecosystem.
The cost of $74,605 for this apartment reflects its premium status and the strategic location on the front line of Batumi. Considering the area of 34.7 m², this price is grounded in the high construction standards and the extensive internal infrastructure provided by Horizons Group. Investing at the current implementation stage allows for capturing the market potential of the New Boulevard before its full realization.
This apartment in Lagoon Resort combines a prime seaside location with the benefits of a modern hotel-type service. The project’s infrastructure and the developer’s reputation ensure the long-term liquidity of the asset. For a detailed selection of available layouts and a personalized financial analysis, you may seek a professional consultation with our experts.


