Positioned within a fully operational sector of Batumi, the residential compound integrates seamlessly with surrounding commercial networks, public transit nodes, and established pedestrian pathways that facilitate daily urban mobility. Residents can rely on the immediate availability of retail services, dining establishments, and administrative facilities, which significantly reduces the need for extended vehicular travel. The neighborhood configuration supports a highly functional living model that preserves convenient access to major coastal attractions.
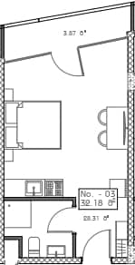
The 32.18 m² layout operates as a practical housing solution for single occupants or couples, concentrating sleeping, working, and resting zones within a clearly defined internal perimeter. This spatial arrangement reduces energy consumption for climate regulation and lowers routine cleaning requirements. The format aligns with contemporary urban living patterns where spatial efficiency and proximity to city amenities take clear precedence over expansive indoor areas.
Placement on the 6 floor establishes a neutral vertical coordinate that balances direct street accessibility with moderately elevated sightlines across surrounding urban infrastructure. This intermediate elevation effectively reduces ambient traffic acoustics while maintaining clear geographic orientation within the municipal layout. Residents benefit from consistent solar exposure and stable atmospheric conditions across seasonal transitions.
The $77,232 valuation directly corresponds to verified spatial dimensions and structural positioning within the building, ensuring that financial allocation remains strictly aligned with measurable residential parameters. This pricing methodology eliminates market speculation and grounds the transaction in quantifiable construction metrics. Purchasers can evaluate the financial requirements based on standardized engineering data rather than subjective commercial positioning.
The positioning within a fully connected urban sector, combined with verified building specifications and straightforward acquisition procedures, generates a reliable housing option suitable for permanent settlement or seasonal utilization. Residents consistently benefit from developed municipal infrastructure and uninterrupted access to coastal recreational zones. Interested buyers may clarify floor plan specifications and verify proximity indices to finalize property assessments.


