Purchasing a property in Next Address offers an entry into one of Batumi’s most promising real estate assets, currently at an active stage of construction. The project is led by Next Group, a developer with a solid reputation for delivering high-quality mixed-use environments in Georgia. The investment logic here is driven by the property’s multifunctional nature, which targets a diverse audience of long-term tenants, expats, and business travelers. Because Hero Alley is the city’s main growth zone for administrative and commercial offices, the demand for high-quality housing in this area remains stable throughout the year, shielding owners from the seasonality typical of properties located directly on the first coastline.
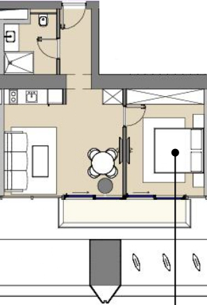
With a total area of 50.2 square meters, this one-bedroom or two-bedroom layout is a stable asset for long-term capitalization. Properties of this size are less susceptible to market fluctuations and attract a reliable tenant base, such as mid-level managers and business professionals. The functional design ensures that every square meter is utilized effectively, supporting a high standard of living in the center of Batumi’s architectural and business artery.
The 25 floor provides a neutral and pleasant visual perspective of Batumi’s evolving skyline and the mountains in the distance. Residents at this level enjoy a sense of elevation that enhances the feeling of light and space within the apartment. This mid-level height is traditionally one of the most popular choices for both owners and tenants, as it combines the prestige of high-rise living with a human-centric sense of height and comfort.
At $98,392, this property is competitively positioned within the premium segment of the Batumi market. The investment is backed by the project’s year-round functionality and its placement in the city’s primary business hub. For a unit located on the 25 floor, the price represents a fair valuation for an apartment that offers modern architectural standards, panoramic glazing, and full access to professional management services.
For those who value mobility and modern comfort, this apartment is a solution that meets all the requirements of a premium lifestyle. The panoramic glazing, secure environment, and diverse internal services create a unique living experience in the epicenter of Batumi’s development. You may clarify the latest availability and specific planning details through an informational inquiry to ensure this project matches your requirements for quality urban living.


