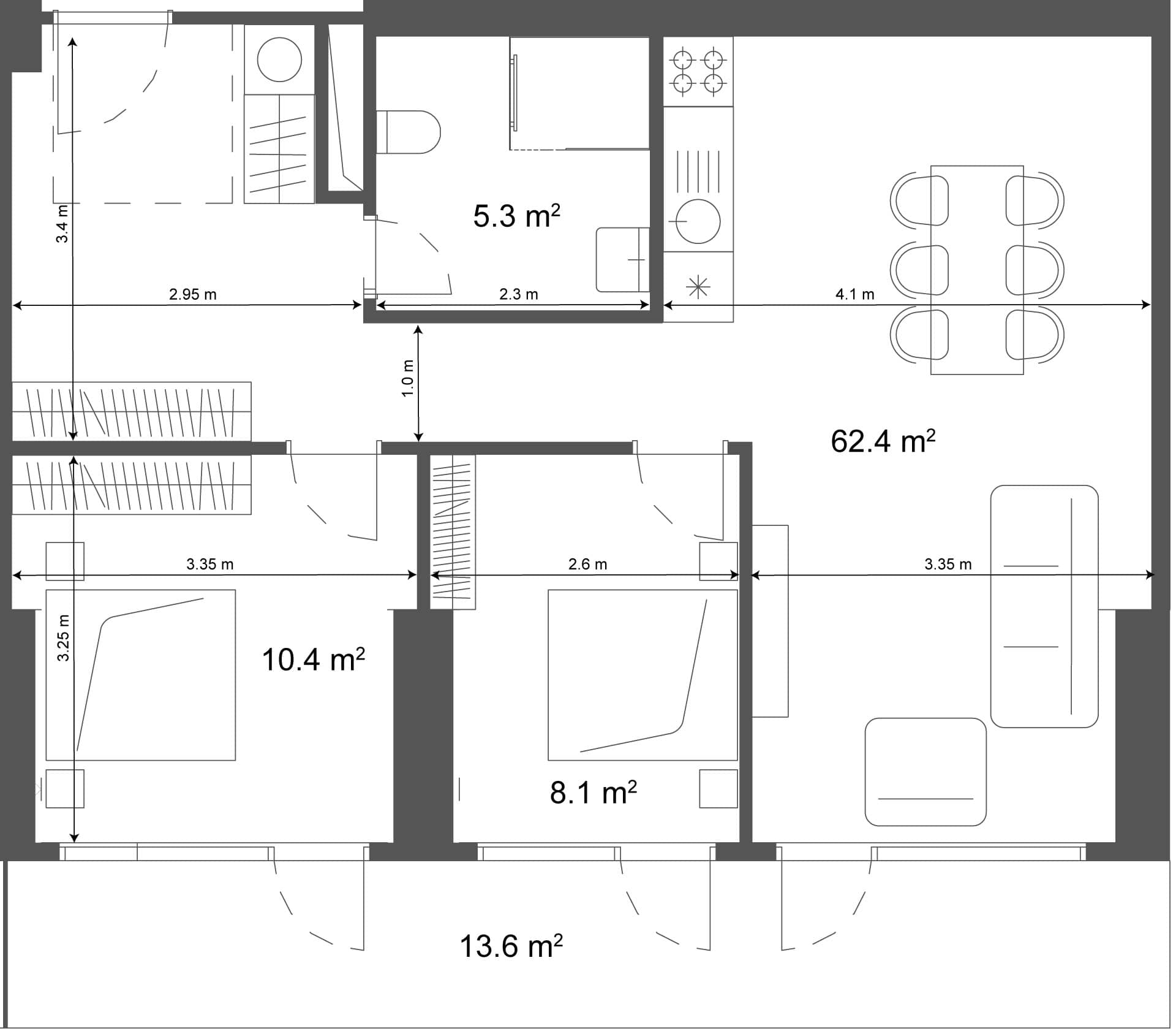
The apartment measuring 76 m² appeals to expats seeking modern housing formats. Professional management infrastructure and predictable operations define the living experience. From a liquidity perspective in Batumi compact and mid-sized formats with kitchens are most versatile. These are easier to rent to tourists expats and mid-term tenants in the city. The layout includes full kitchen areas expanding rental scenarios beyond standard hotel rooms. Such units are easier to rent to tourists expats and mid-term tenants. The branded residences format ensures high service standards even for smaller living spaces.
With 76 m² the unit covers broader demand than standard hotel accommodations. Rental demand is driven by the brand plus service plus location combination. The project will attract tourists business guests digital nomads and buyers seeking a living format. Branded residences in central Batumi are chosen because they scale more easily in rentals. They retain stronger positions in the secondary market compared to standard apartments. Mid-sized formats with kitchens are most versatile for investors and residents. These are easier to rent to tourists expats and mid-term tenants in the city.
Positioned at level 27 the unit benefits from reduced street noise while maintaining access. Heroes Avenue sustains demand through mixed traffic tourist flows and business activity. This makes the location more resilient than purely seasonal coastal areas for investment. In Batumi properties in such districts typically outperform peripheral new builds. Tenants need year-round access to infrastructure which this location provides. Surrounding amenities include Batumi Mall Black Sea Mall Carrefour and restaurants. The sea is approximately 356 meters away from the residential building entrance.
A price point of $266,353 includes the value of an international hotel brand. Such complexes are chosen when future liquidity matters more than just the entry price. Architecturally the project follows a modern urban format with view-oriented features. The complex features branded interiors according to Ramada by Wyndham standards. Management is entrusted to River Rock enhancing the service component for all residents. This is a solution for those who view the purchase as an investment. Comfortable living without compromising between privacy and service is the main objective.
Suitable for investors needing an asset in a central location with clear demand. For living if urban rhythm walking distance to the sea and on-site service matter. For relocation if you need a modern housing format with professional management. For passive income if you are interested in a property where rental logic is supported. Brand operator and a strong neighborhood support the investment case. Ramada Residences is service-oriented real estate for those who choose Batumi. The project is worth considering when liquidity brand and managed format matter.


