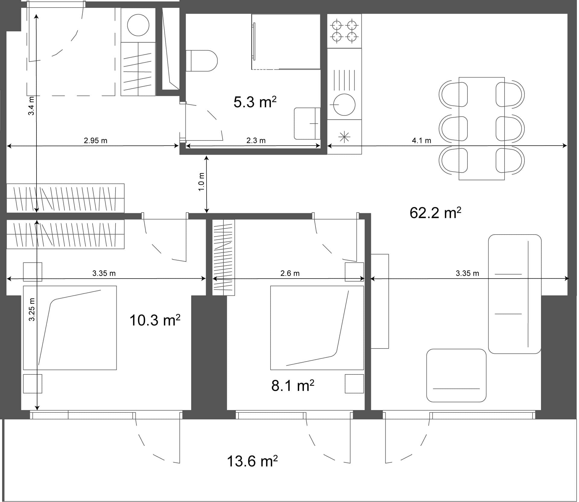
2-ოთახიანი ბინა, 75.8 მ², 20 სართული პროექტში "Ramada Residences"
ბათუმი, ხიმშიაშვილი, ფიროსმანის ქ. 10

ბინის შესახებ
კოდი
13,550,370ნუმერაცია
2001სართული
20ოთახიანობა
2-ოთახიანი
ფასი
$250,967ფასი / მ²
$3,310საერთო ფართობი
75.8 მ²
სტუდიო
$135,1311-ოთახიანი ბინა
$175,7712-ოთახიანი ბინა
$248,172ფასი მ²-ზე
$3,175კლასი
premium
სართულები
45ლიფტი
დიახლიფტების რაოდენობა
4ზღვამდე მანძილი
356 მუბანი
ხიმშიაშვილი


