Гонио традиционно считается экологическим эталоном аджарского побережья, и комплекс Montemar Gonio занимает в этой локации одно из самых выгодных положений. Близость к турецкой границе обеспечивает чистоту морских течений, а горный рельеф создает особый микроклимат. Квартира здесь идеально подходит для оздоровления и качественного отдыха всей семьей. Удаленность от промышленного шума и плотных транспортных потоков Батуми при сохранении мобильности — важное преимущество для тех, кто планирует переезд на ПМЖ или рассматривает объект для длительного пребывания. Инвестиции в экологию и качество среды проживания становятся главным трендом рынка недвижимости региона.
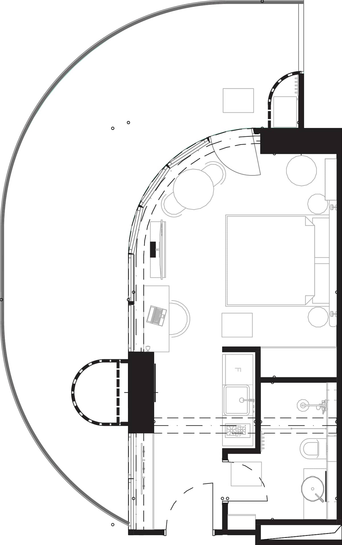
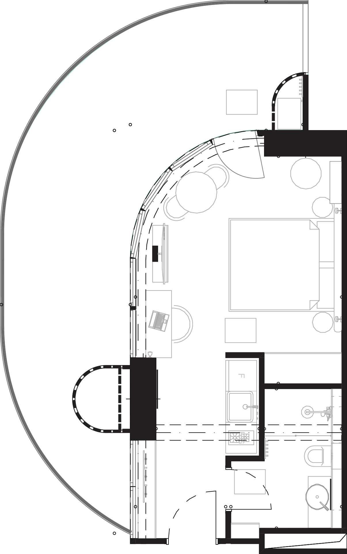
Квартира среднего метража 58 м² предлагает сбалансированное решение для тех, кто ценит простор и комфорт. Такая площадь позволяет организовать полноценную спальню и уютную гостиную зону, что делает объект востребованным для длительного проживания. В рамках комплекса Montemar Gonio этот формат жилья обеспечивает приватность и достаточное пространство для работы и отдыха.
Выбирая 5 этаж, вы получаете жилье с отличной инсоляцией и панорамным обзором. Высота данного уровня обеспечивает достаточную дистанцию от придомовой территории, формируя тихую и спокойную среду внутри помещений. Это оптимальный вариант как для собственного сезонного отдыха, так и для сдачи в долгосрочную аренду арендаторам, ценящим качественное восприятие пространства.
Инвестиционная логика цены $147 030 строится на сочетании арендного потенциала и органического роста стоимости метра в данном сегменте. Montemar Gonio выделяется на фоне типовых новостроек региона своей концепцией и качеством исполнения. Подобная стоимость является обоснованным входом в проект на стадии активного развития, позволяя зафиксировать выгодные условия до финального подорожания объекта.
Для жизни и сезонного отдыха Montemar Gonio предлагает высокий уровень приватности, безопасности и сервиса. Сочетание панорамных видов, чистого горного воздуха и близости к деловому центру Батуми делает проект привлекательным для долгосрочного владения. Ознакомиться с техническими спецификациями и уточнить условия приобретения недвижимости можно через информационный запрос специалистам.

