Архитектурно проект ориентирован на современный городской формат с видовыми характеристиками и функциональными планировками, соответствующими стандартам Ramada by Wyndham. В резиденциях предусмотрены полноценные кухонные зоны, что расширяет сценарии использования по сравнению с классическими гостиничными номерами. Срок завершения проекта заявлен на четвертый квартал 2029 года, что позволяет войти в проект на стадии строительства с потенциалом роста стоимости к моменту сдачи.
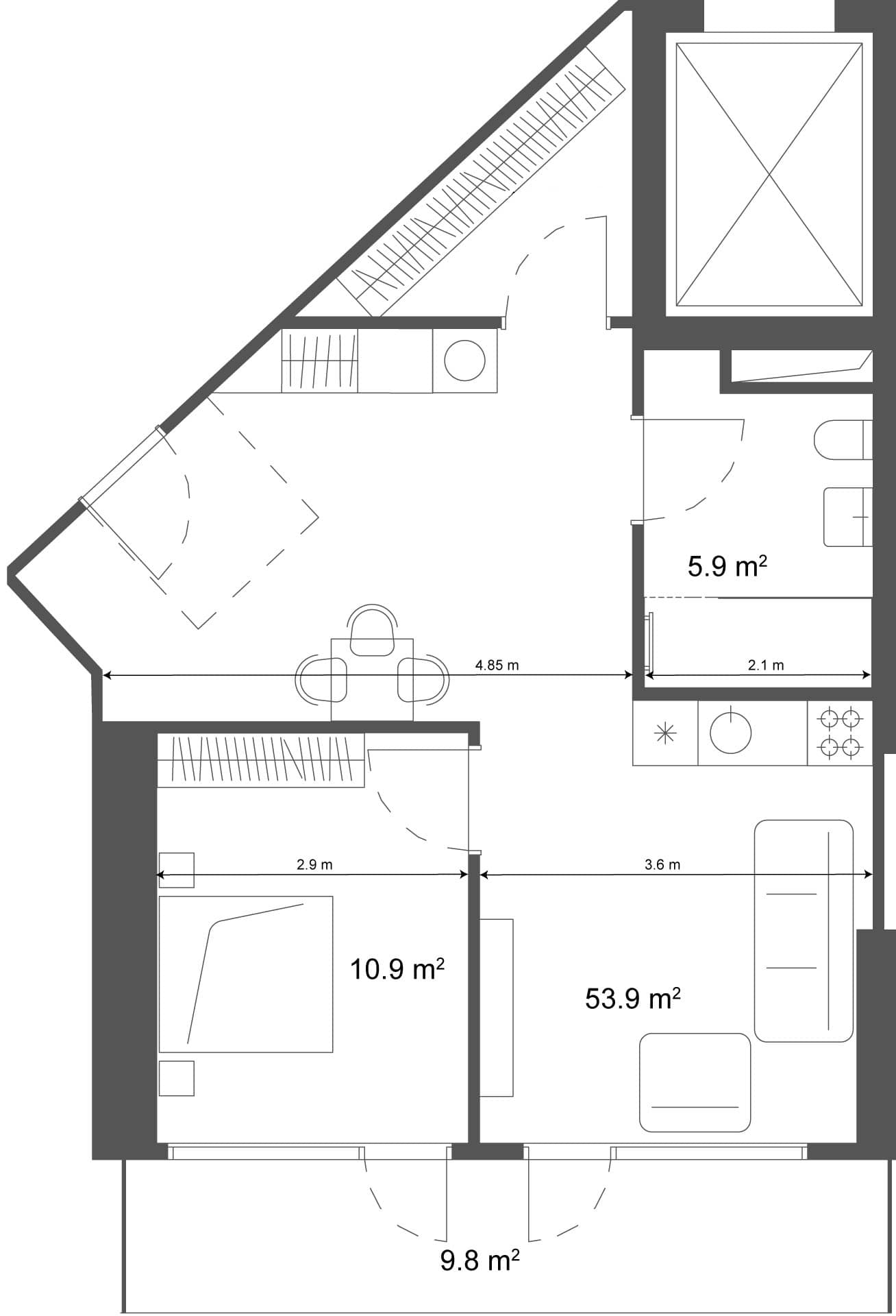
Площадь около 63.7 м² позволяет организовать комфортное проживание с выделенной спальней и гостиной, что повышает ценность объекта на среднесрочном рынке. Такой метраж востребован у digital nomads, которым требуется пространство для работы и жизни в условиях сервисного управления. Функциональная планировка в стандартах Ramada обеспечивает эффективное использование каждого метра без ощущения тесноты в городской среде.
Расположение квартиры на 24 этаже предлагает оптимальный баланс между высотой, видовыми характеристиками и комфортом проживания. Средние уровни защищают от уличного шума, но при этом сохраняют связь с городской средой и видами на район Аллеи Героев. Это универсальный выбор, который подходит большинству покупателей, ищущим золотую середину между приватностью верхних этажей и доступностью нижних.
Стоимость $210 139 обоснована расположением в одном из самых активных районов Батуми, где смешанный трафик удерживает спрос круглый год. Локация на Аллее Героев является фактором, поддерживающим цену объекта даже в периоды сезонных колебаний рынка недвижимости. Инвестиция в такой адрес обеспечивает защиту капитала за счёт дефицита качественных предложений в центральной части города.
Проект реализует сценарий проживания с отельной дисциплиной, но без отказа от приватности квартиры в 435 метрах от моря. Это современный формат жилья с управлением и инфраструктурой, который обеспечивает предсказуемую эксплуатацию для владельца. Для уточнения характеристик конкретного лота и условий оплаты рекомендуется связаться с отделом продаж для консультации.



