The internal filling of Montemar Gonio has been carefully curated to meet business-class standards, from the ergonomic layouts to the high-quality finishing of common areas. Every element of the complex, including the landscaping of the adjacent territory and the security systems, is aimed at creating a premium living environment. The developer has focused on durability and functionality, ensuring that the object remains aesthetically pleasing and operationally efficient over the long term. This commitment to quality is evident in the choice of materials and the integration of professional management, making the complex a standout example of contemporary coastal architecture in the Batumi region.
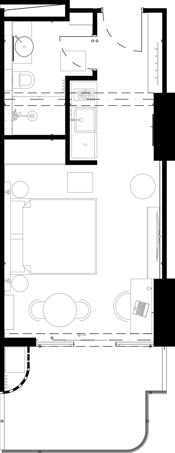
This studio with an area of 38.2 m² represents a highly efficient investment format tailored for the Gonio rental market. The layout is optimized to provide full functionality within a compact space, making it ideal for short-term tourist stays. Such units are in high demand due to their accessibility and the clean ecological status of the district.
Located on the 5 floor, this apartment represents the classic middle-tier positioning that appeals to a wide range of tenants and buyers. This level captures the essence of Montemar Gonio’s architectural concept, providing a harmonious vantage point that isn’t too high but offers a significant improvement in privacy compared to the lower floors.
At $101,039, the buyer acquires not just a residential unit of 38.2 m², but a comprehensive lifestyle product with five-star hotel infrastructure. The presence of an outdoor pool, gym, and professional management company adds significant long-term value to the property. This ensures that the apartment remains a liquid and attractive asset for both rent and resale.
The high standards of construction and focus on ergonomics make Montemar Gonio a standout project in the Adjara real estate market. Its mid-rise architecture and clean ecological surroundings provide a level of exclusivity that is hard to find in the city center. You may clarify the details regarding specific view characteristics for this apartment.

