The residential complex is specifically positioned as an investment product with a ready-made rental model. Next Group manages the apartments, removing the need for owners to search for tenants independently. This service component is crucial for generating passive income through the steady tourist flow in the Makhinjauri district. The format is ideal for investors seeking a hands-off approach to property management while capitalizing on the high demand for seaside accommodation.
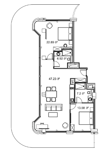
An expansive area of 195.93 m² provides a luxury living experience with ample room for relaxation and entertainment. This format is ideal for those who prioritize space and privacy during their stay by the sea. Large apartments attract high-budget tourists and long-term residents seeking premium comfort. The generous square footage enhances the perceived value of the property in the eyes of potential tenants.
Living on the 14 floor carries a premium status within the residential complex hierarchy. These units are perceived as the most prestigious addresses in the building. The combination of height, view, and privacy justifies a higher valuation in the market. For investors, this translates to the ability to set higher nightly rates for short-term accommodations.
An investment of $530,693 in this complex provides stability due to the developer’s strong reputation. Next Group’s track record with projects like Radisson Residences adds confidence to the purchase. The price includes not just the physical space but the security of a managed asset. This reduces the risks associated with independent property ownership in a foreign market.
Ownership here includes the advantage of professional management by the developer, simplifying the rental process. This service component removes the burden of maintenance and tenant coordination from the owner. It allows investors to focus on returns rather than operational details. The managed format is a key differentiator in the Batumi real estate market.




