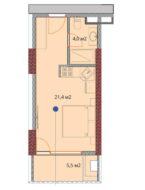
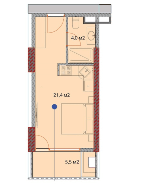
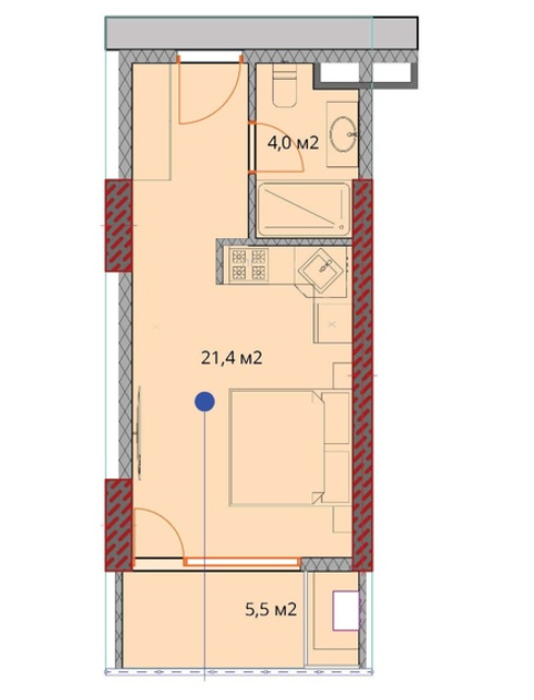
Apartment parameters
About apartment
OKTO Art House in Batumi offers unique opportunities for those looking to buy a studio apartment affordably from the developer. Our studios in completed residential complexes provide modern comfort and convenience.
Looking for the cheapest studio from the developer? At OKTO Art House, you will find the best deals at attractive prices. We offer the opportunity to buy a studio in a residential complex at an affordable price, ensuring high construction and finishing quality.
Our developer's studio apartments at affordable prices provide an excellent opportunity to invest in real estate. The sale of studios from the developer is carried out on favorable terms, making the purchase even more accessible.
At OKTO Art House, you will find inexpensive studio apartments in new buildings, ideal for young families, students, and investors. Our studio apartments can be purchased affordably in new buildings without worrying about additional costs.
Buying a studio at OKTO Art House is your step toward comfort and a modern lifestyle in Batumi. Our offers include a wide selection of studios ready for occupancy at the most affordable prices. Don't miss the chance to acquire quality housing at a great price!
Maintenance: $ 1.20 m2
Infrastructure:
● Children's art school on weekends
● On the territory of a pharmacy, shops, 1 F&B Outlet (Like Entree in Tbilisi)
● Closed territory
● Children's playground
● Walking area/gazebos
● Exercise machines on the territory of the complex.
● Stadium
● Underground parking - 640 places
● Swimming pool between blocks
● Gym
● Reception/lobby
About project
- استوديو:
- من $ 59,752
- شقة بغرفة واحدة:
- من $ 109,998
- السعر لكل م²:
- من $ 1,940 م²
- الشقق:
- من 30.8 إلى 58 م²
- عدد الطوابق:
- 35
- مصعد:
- نعم
- عدد المصاعد:
- 4
- ميزات إضافية:
- مسبح, نادي رياضي
- المسافة إلى البحر:
- 600 م
تغير السعر
السعر المتوسط للشقة
$ 47,576
$ 1,878
السعر المتوسط للمتر المربع
$/م² 1,595
$/م² 15










