Real estate acquisition in Optima Residence aligns with a practical approach to urban living, where geographic positioning and architectural efficiency work in tandem to support daily routines. The Airport district location places the building within a rapidly developing infrastructure network, offering direct routes to the transport hub while keeping essential coastal amenities within walking distance of 325 meters. Designed as a comfort-class property, the complex features an 18-story vertical layout optimized for natural lighting and spatial distribution across one to three room configurations. Execution is managed by a market operator with over 300,000 m² of completed developments.
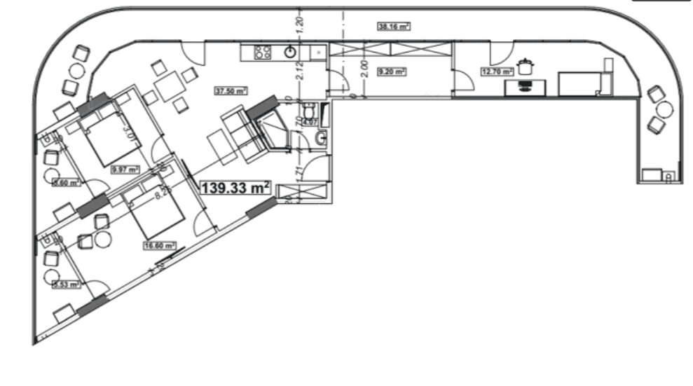
Expansive configurations of 139.33 m² prioritize spatial division and dedicated functional zones, allowing independent usage of sleeping, working, and social areas. The generous footprint supports structured family living, guest accommodation, or specialized home office setups without compromising circulation pathways. In a district transitioning toward full infrastructure saturation, larger formats provide long-term adaptability.
Residences on the 16 floor maintain strict acoustic separation from external transit and pedestrian corridors, establishing a highly controlled interior environment. The elevation ensures consistent airflow and natural light penetration without requiring additional structural modifications. Within the Airport district, such positioning attracts buyers seeking minimal environmental interference and reliable atmospheric conditions.
An allocation of $160,230 guarantees entry into a structured residential environment where maintenance reliability, spatial efficiency, and district connectivity operate as unified value components. The pricing accounts for verified developer delivery, integrated amenity access, and transparent property administration, eliminating hidden operational uncertainties. Within Batumi’s framework, this valuation supports strategic acquisition planning.
Verified construction standards and integrated service management create a reliable residential foundation in the Airport district. Proximity to transit routes and coastal access supports consistent property utilization and manageable upkeep. Reviewing specific layout parameters through professional assessment ensures accurate alignment with occupancy requirements and planning objectives.



