Green frame finishing materials and automated home control systems are installed in every unit, streamlining the operational transition from purchase completion to active rental deployment. The developer’s material selection prioritizes acoustic dampening and energy conservation, which remains essential for maintaining guest satisfaction and neighborhood tranquility. Such engineering methodologies demonstrate a clear commitment to sustainable property performance standards.
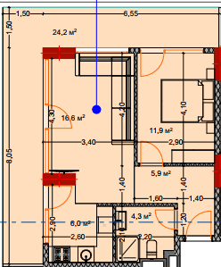
A living space of 69.7 square meters offers sufficient room for standard household appliances, dining arrangements, and organized personal storage. The moderate footprint reduces utility expenses while maintaining comfortable airflow and consistent natural lighting across both primary rooms. Residents benefit from simplified property upkeep, which remains ideal for extended rental contracts or permanent year-round occupancy.
A residence on the 10 level balances elevated visibility with efficient access through standard circulation routes without delays. Mid-range positioning reduces direct coastal humidity while preserving consistent natural airflow across interior spaces. This elevation satisfies occupants seeking stable environmental conditions without compromising vertical mobility inside the structure.
The cost of $51,927 includes full utility integration and energy-efficient building envelopes that reduce monthly operational expenses. Internal amenities like fitness zones and supervised play areas are embedded in the base valuation rather than billed separately. This transparent pricing simplifies financial planning for permanent residents and rental operators alike.
The residence integrates monolithic engineering and secured recreational spaces into cohesive living frameworks. Individuals requiring clarification on utility specifications can consult technical representatives for precise details. This ensures full alignment between expectations and delivered infrastructure.



