სტუდიო, 39.2 მ², 23 სართული პროექტში "Ramada Residences"
ბათუმი, ხიმშიაშვილი, ფიროსმანის ქ. 10

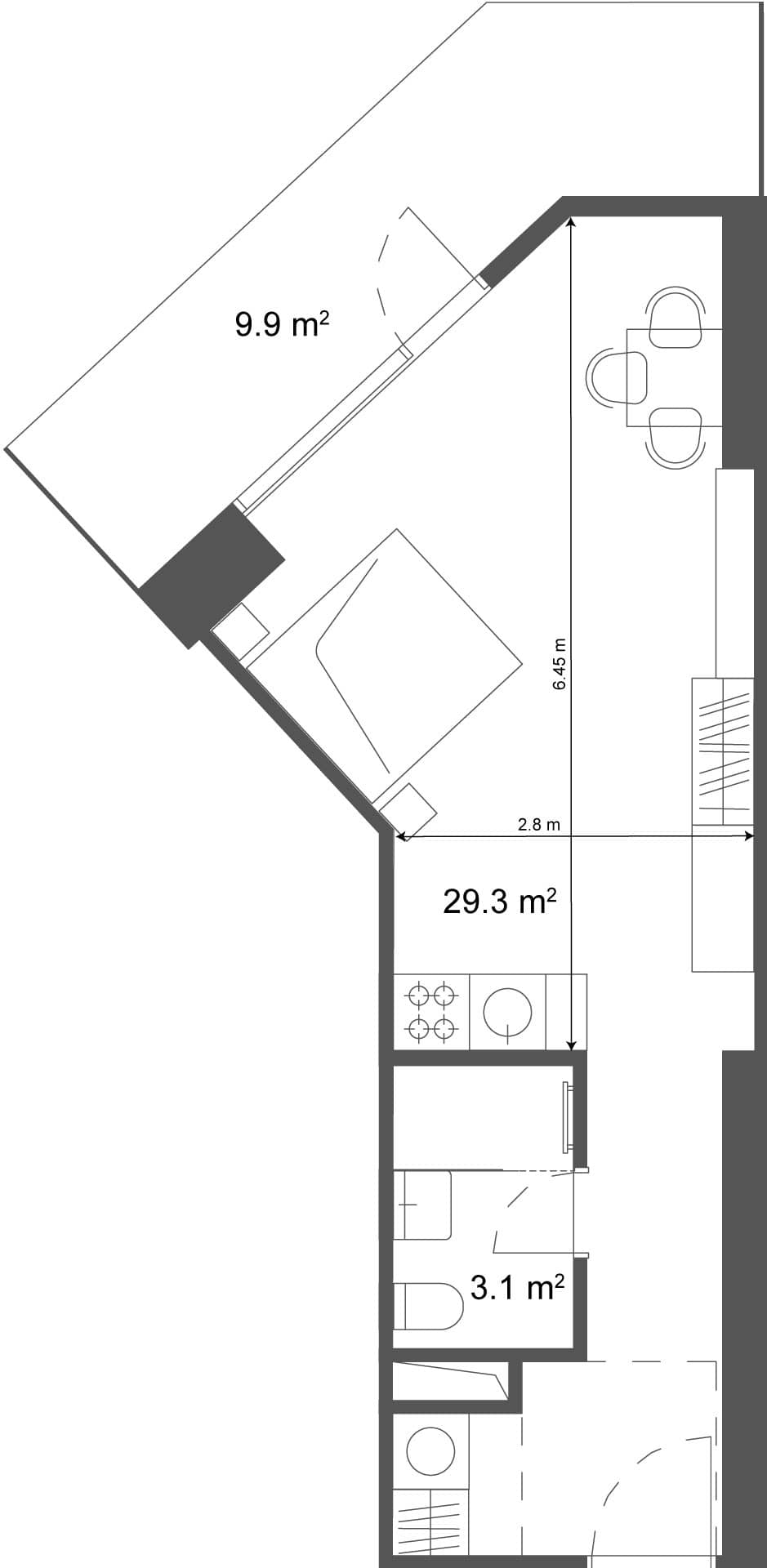
ბინის შესახებ
კოდი
13,550,248ნუმერაცია
2310სართული
23ოთახიანობა
სტუდიო
ფასი
$150,663ფასი / მ²
$3,843საერთო ფართობი
39.2 მ²
სტუდიო
$135,1311-ოთახიანი ბინა
$175,7712-ოთახიანი ბინა
$248,172ფასი მ²-ზე
$3,175კლასი
premium
სართულები
45ლიფტი
დიახლიფტების რაოდენობა
4ზღვამდე მანძილი
356 მუბანი
ხიმშიაშვილი
რუკა
მსგავსი ბინები
რებული პროექტები
რატომ სწორედ ბათუმში?
- ფასები ნებისმიერი ბიუჯეტისთვის. სტუდია ზღვასთან შეიძლება ღირდეს სულ რაღაც €15–20 ათასი, ხოლო ფართო ბინა ზღვის ხედით — €40–50 ათასი.
- მოსახერხებელი შეძენის პირობები. დეველოპერები სთავაზობენ განვადებას და ხელსაყრელ ფასებს მშენებლობის ეტაპზე. ეს არის დაზოგვის და გადახდის მოსახერხებელი გრაფიკის არჩევის შესაძლებლობა.
- საინვესტიციო სარგებელი. ბათუმი ყოველწლიურად მასპინძლობს ასობით ათას ტურისტს. ბინები ზღვასთან დიდი მოთხოვნით სარგებლობს და მოაქვს სტაბილური შემოსავალი გაქირავებიდან.
როგორ ავირჩიოთ ბინა?
- ჯერ განსაზღვრეთ მიზანი — საცხოვრებლად, გასაქირავებლად თუ ინვესტიციისთვის.
საცხოვრებლად შესაფერისია მშვიდი რაიონები ინფრასტრუქტურით, გასაქირავებლად — ზღვასთან და ბულვართან ახლოს. - შეამოწმეთ დეველოპერი და დოკუმენტები, დააზუსტეთ განვადების პირობები.
- შეადარეთ ვარიანტები მდებარეობის, ხედის, მდგომარეობისა და ბიუჯეტის მიხედვით და, თუ შესაძლებელია, პირადად დაათვალიერეთ ბინა ყიდვამდე.
რა ღირს ბინა ბათუმში?
ბინების ფასები ბათუმში მნიშვნელოვნად არის დამოკიდებული რაიონზე, ხედსა და ობიექტის მდგომარეობაზე. საშუალოდ:
ეკონომ-სეგმენტში (უფრო დაშორებული რაიონები, ზღვის ხედის გარეშე) — დაახლოებით $900 – 1 200 კვ.მ-ზე.
პოპულარულ რაიონებში ზღვასთან ახლოს ან ახალშენებულ კორპუსებში — დაახლოებით $1 500 – 2 000 კვ.მ-ზე.
პრემიუმ-ობიექტებში ზღვის ხედით, მაღალი დონის სერვისითა და დიზაინით — შეიძლება იყოს $2 500+ კვ.მ-ზე.
რატომ ირჩევენ კლიენტები ჩვენ?
ჩვენ ვართ ბათუმის ახალშენების აგრეგატორი: ყველა დეველოპერი ერთ ადგილზე.
ჩვენ ვადარებთ ფასებს, განვადებებს და პირობებს — სწრაფად და პატიოსნად.

