Статус завершенного строительства позволяет оценить качество материалов и отделки до покупки. Покупатели получают готовый продукт, не требующий дополнительных вложений в ремонт. Управление через профессиональную компанию минимизирует участие собственника в процессах аренды. Проект решает задачу приобретения надежной недвижимости в престижном районе Батуми.
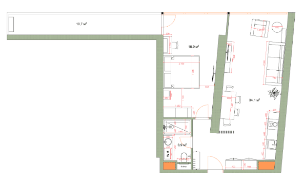
Квартира площадью 70.16 м² предлагает баланс между компактностью и комфортом для проживания. Такой метраж подходит как для временного отдыха у моря, так и для постоянной жизни в Батуми. Однокомнатные и небольшие двухкомнатные форматы универсальны для разных категорий арендаторов. Пространство позволяет организовать полноценную жилую зону с необходимой мебелью.
Квартира на 25 этаже обладает высокой ликвидностью за счет востребованности среднего диапазона. Покупатели часто ищут золотую середину между ценой нижних этажей и видами верхних. Это положение в здании обеспечивает стабильный спрос при перепродаже или сдаче. Инвестиция в средний этаж считается надежной и предсказуемой.
Стоимость объекта $126 288 обоснована завершённой стадией строительства и готовностью к заселению. Отсутствие рисков долгостроя включено в цену, делая покупку безопасной. Район Аэропорт демонстрирует рост стоимости недвижимости, поддерживая ценность актива. Это рациональное вложение средств с понятной перспективой роста цены.
Недвижимость в 7th Heaven Residence обладает потенциалом роста стоимости за счет локации. Первая береговая линия и туристический поток гарантируют востребованность объекта. Условия покупки от застройщика оптимизированы для инвесторов и частных покупателей. Это возможность приобрести жилье в перспективном районе города.


