ΠΠΎΠΌΡΠΎΡΡ ΠΏΡΠΎΠΆΠΈΠ²Π°Π½ΠΈΡ Π²Β ΠΠΒ Calligraphy Towers ΠΎΠ±Π΅ΡΠΏΠ΅ΡΠΈΠ²Π°Π΅ΡΡΡ Π·Π°Β ΡΡΡΡ ΠΏΡΠΎΡΠ΅ΡΡΠΈΠΎΠ½Π°Π»ΡΠ½ΠΎΠΉ ΡΠΏΡΠ°Π²Π»ΡΡΡΠ΅ΠΉ ΠΊΠΎΠΌΠΏΠ°Π½ΠΈΠΈ ΠΈΒ ΠΊΠΎΠΌΠΏΠ»Π΅ΠΊΡΠ½ΠΎΠΉ ΡΠ΅ΡΠ²ΠΈΡΠ½ΠΎΠΉ ΠΌΠΎΠ΄Π΅Π»ΠΈ. ΠΠ°ΠΊΡΡΡΠ°Ρ ΡΠ΅ΡΡΠΈΡΠΎΡΠΈΡ ΡΒ Π²ΠΈΠ΄Π΅ΠΎΠ½Π°Π±Π»ΡΠ΄Π΅Π½ΠΈΠ΅ΠΌ ΠΈΒ ΠΊΠΎΠ½ΡΡΠΎΠ»ΠΈΡΡΠ΅ΠΌΡΠΌ Π΄ΠΎΡΡΡΠΏΠΎΠΌ ΡΠΎΠ·Π΄Π°ΡΡ Π±Π΅Π·ΠΎΠΏΠ°ΡΠ½ΡΡ ΡΡΠ΅Π΄Ρ Π΄Π»ΡΒ ΡΠ΅Π·ΠΈΠ΄Π΅Π½ΡΠΎΠ², Π°Β Π±Π»Π°Π³ΠΎΡΡΡΡΠΎΠ΅Π½Π½ΡΠ΅ Π΄Π²ΠΎΡΡ Π±Π΅Π·Β Π°Π²ΡΠΎΠΌΠΎΠ±ΠΈΠ»Π΅ΠΉ ΡΠΎΡΠΌΠΈΡΡΡΡ Π·ΠΎΠ½Ρ ΡΠΏΠΎΠΊΠΎΠΉΠ½ΠΎΠ³ΠΎ ΠΎΡΠ΄ΡΡ Π°. ΠΠ°Π»ΠΈΡΠΈΠ΅ ΡΠΈΡΠ½Π΅Ρ-Π·ΠΎΠ½Ρ, ΠΏΡΠΎΡΡΡΠ°Π½ΡΡΠ² Π΄Π»ΡΒ ΠΎΡΠ΄ΡΡ Π° ΠΈΒ ΠΊΠΎΠΌΠΌΠ΅ΡΡΠ΅ΡΠΊΠΈΡ ΠΏΠΎΠΌΠ΅ΡΠ΅Π½ΠΈΠΉ Π½Π°Β ΠΏΠ΅ΡΠ²ΠΎΠΌ ΡΡΠΎΠ²Π½Π΅ ΡΠ΄ΠΎΠ²Π»Π΅ΡΠ²ΠΎΡΡΠ΅Ρ Π±Π°Π·ΠΎΠ²ΡΠ΅ ΠΏΠΎΡΡΠ΅Π±Π½ΠΎΡΡΠΈ Π±Π΅Π·Β Π²ΡΠ΅Π·Π΄Π° Π·Π°Β ΠΏΡΠ΅Π΄Π΅Π»Ρ ΠΊΠΎΠΌΠΏΠ»Π΅ΠΊΡΠ°. ΠΠΎΠ΄ΠΎΠ±Π½Π°Ρ ΠΎΡΠ³Π°Π½ΠΈΠ·Π°ΡΠΈΡ ΠΏΡΠΎΡΡΡΠ°Π½ΡΡΠ²Π° ΡΠ½ΠΈΠΆΠ°Π΅Ρ ΡΠΊΡΠΏΠ»ΡΠ°ΡΠ°ΡΠΈΠΎΠ½Π½ΡΠ΅ ΠΈΠ·Π΄Π΅ΡΠΆΠΊΠΈ ΠΈΒ ΠΏΠΎΠ²ΡΡΠ°Π΅Ρ ΠΏΡΠΈΠ²Π»Π΅ΠΊΠ°ΡΠ΅Π»ΡΠ½ΠΎΡΡΡ ΠΊΠ²Π°ΡΡΠΈΡ Π΄Π»ΡΒ Π΄ΠΎΠ»Π³ΠΎΡΡΠΎΡΠ½ΠΎΠΉ ΡΠ΄Π°ΡΠΈ.
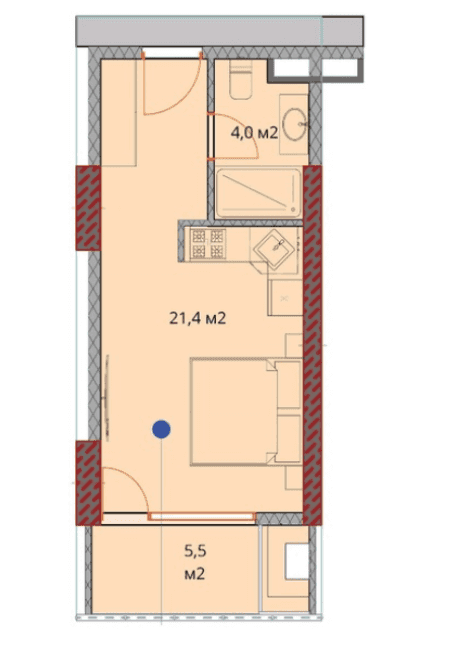
ΠΠ»ΠΎΡΠ°Π΄Ρ 29.3Β ΠΌΒ² ΡΠΎΡΠΌΠΈΡΡΠ΅Ρ ΠΊΠ°ΠΌΠ΅ΡΠ½ΠΎΠ΅ ΠΆΠΈΠ»ΠΎΠ΅ ΠΏΡΠΎΡΡΡΠ°Π½ΡΡΠ²ΠΎ, Π³Π΄Π΅ Π°ΠΊΡΠ΅Π½Ρ ΡΠΌΠ΅ΡΡΠ½ Π½Π°Β ΠΊΠ°ΡΠ΅ΡΡΠ²ΠΎ ΠΌΠ°ΡΠ΅ΡΠΈΠ°Π»ΠΎΠ² ΠΈΒ ΡΡΠ³ΠΎΠ½ΠΎΠΌΠΈΠΊΡ ΠΏΠ»Π°Π½ΠΈΡΠΎΠ²ΠΊΠΈ. ΠΠΎΠ΄ΠΎΠ±Π½ΡΠΉ ΠΌΠ΅ΡΡΠ°ΠΆ ΠΈΠ΄Π΅Π°Π»ΡΠ½ΠΎ ΠΏΠΎΠ΄Ρ ΠΎΠ΄ΠΈΡ Π΄Π»ΡΒ ΡΠ΅Π·ΠΈΠ΄Π΅Π½ΡΠΎΠ², ΡΠ°ΡΡΠΌΠ°ΡΡΠΈΠ²Π°ΡΡΠΈΡ Π½Π΅Π΄Π²ΠΈΠΆΠΈΠΌΠΎΡΡΡ ΠΊΠ°ΠΊΒ ΠΈΠ½ΡΡΡΡΠΌΠ΅Π½Ρ Π΄ΠΈΠ²Π΅ΡΡΠΈΡΠΈΠΊΠ°ΡΠΈΠΈ ΠΊΠ°ΠΏΠΈΡΠ°Π»Π° ΡΒ ΠΏΡΠ΅Π΄ΡΠΊΠ°Π·ΡΠ΅ΠΌΡΠΌ Π°ΡΠ΅Π½Π΄Π½ΡΠΌ ΠΏΠΎΡΠΎΠΊΠΎΠΌ. Π Π°ΡΠΏΠΎΠ»ΠΎΠΆΠ΅Π½ΠΈΠ΅ Π²Β ΡΡΡΡ ΠΊΠΎΡΠΏΡΡΠ°Ρ ΠΏΠ΅ΡΠ΅ΠΌΠ΅Π½Π½ΠΎΠΉ ΡΡΠ°ΠΆΠ½ΠΎΡΡΠΈ Π³Π°ΡΠ°Π½ΡΠΈΡΡΠ΅Ρ ΠΎΡΡΡΡΡΡΠ²ΠΈΠ΅ Π²ΠΈΠ·ΡΠ°Π»ΡΠ½ΠΎΠ³ΠΎ Π΄Π°Π²Π»Π΅Π½ΠΈΡ ΡΠΎΡΠ΅Π΄Π½ΠΈΡ Π·Π°ΡΡΡΠΎΠ΅ΠΊ. ΠΠΈΠ½ΠΈΠΌΠ°Π»ΡΠ½Π°Ρ ΠΏΠ»ΠΎΡΠ°Π΄Ρ ΡΠ½ΠΈΠΆΠ°Π΅Ρ Π½Π°Π³ΡΡΠ·ΠΊΡ Π½Π°Β ΠΊΠΎΠΌΠΌΡΠ½Π°Π»ΡΠ½ΡΠ΅ ΡΠΈΡΡΠ΅ΠΌΡ ΠΊΠΎΠΌΠΏΠ»Π΅ΠΊΡΠ°, ΠΏΠΎΠ΄Π΄Π΅ΡΠΆΠΈΠ²Π°Ρ ΡΡΠ°Π±ΠΈΠ»ΡΠ½ΡΠΉ ΡΡΠΎΠ²Π΅Π½Ρ ΡΠ΅ΡΠ²ΠΈΡΠ½ΠΎΠ³ΠΎ ΠΎΠ±ΡΠ»ΡΠΆΠΈΠ²Π°Π½ΠΈΡ.
Π£ΡΠΎΠ²Π΅Π½Ρ 36 ΡΡΠ°ΠΆΠ° Π³Π°ΡΠ°Π½ΡΠΈΡΡΠ΅Ρ ΡΡΠ°Π±ΠΈΠ»ΡΠ½ΡΡ Π²Π΅Π½ΡΠΈΠ»ΡΡΠΈΡ ΠΈΒ ΠΎΡΡΡΡΡΡΠ²ΠΈΠ΅ ΠΏΡΡΠΌΠΎΠ³ΠΎ ΡΠ»ΠΈΡΠ½ΠΎΠ³ΠΎ ΡΡΠΌΠ°, ΡΠΎΠ·Π΄Π°Π²Π°Ρ Π°ΡΠΌΠΎΡΡΠ΅ΡΡ ΡΠ΅Π΄ΠΈΠ½ΡΠ½Π½ΠΎΠ³ΠΎ ΠΏΡΠΎΠΆΠΈΠ²Π°Π½ΠΈΡ. ΠΠ²Π°ΡΡΠΈΡΡ Π½Π°Β Π΄Π°Π½Π½ΠΎΠΉ Π²ΡΡΠΎΡΠ΅ Π²ΠΎΡΡΡΠ΅Π±ΠΎΠ²Π°Π½Ρ Π°ΡΠ΅Π½Π΄Π°ΡΠΎΡΠ°ΠΌΠΈ, ΠΈΡΡΡΠΈΠΌΠΈ ΠΌΠ°ΠΊΡΠΈΠΌΠ°Π»ΡΠ½ΡΠΉ ΠΊΠΎΠΌΡΠΎΡΡ ΠΈΒ ΡΡΡΠ΅ΡΠΈΠΊΡ Π²ΠΎΡΠΏΡΠΈΡΡΠΈΡ ΠΏΡΠΎΡΡΡΠ°Π½ΡΡΠ²Π° Π²Β ΠΠΒ Calligraphy Towers. ΠΡΡΠΎΠΊΠΎΠ΅ ΡΠ°ΡΠΏΠΎΠ»ΠΎΠΆΠ΅Π½ΠΈΠ΅ ΠΌΠΈΠ½ΠΈΠΌΠΈΠ·ΠΈΡΡΠ΅Ρ ΡΠΈΡΠΊΠΈ Π·Π°ΡΠ΅Π½Π΅Π½ΠΈΡ, ΠΏΠΎΠ΄Π΄Π΅ΡΠΆΠΈΠ²Π°Ρ ΠΏΠΎΡΡΠΎΡΠ½Π½ΡΡ ΠΈΠ½ΡΠΎΠ»ΡΡΠΈΡ ΠΊΠΎΠΌΠ½Π°Ρ Π²Β ΡΠ΅ΡΠ΅Π½ΠΈΠ΅ ΠΊΡΡΠΎΡΡΠ½ΠΎΠ³ΠΎ ΡΠ΅Π·ΠΎΠ½Π°. ΠΠΎΠ΄ΠΎΠ±Π½ΡΠΉ ΠΏΠ°ΡΠ°ΠΌΠ΅ΡΡ ΡΡΠΈΠ»ΠΈΠ²Π°Π΅Ρ ΠΈΠ½Π²Π΅ΡΡΠΈΡΠΈΠΎΠ½Π½ΡΡ ΠΏΡΠΈΠ²Π»Π΅ΠΊΠ°ΡΠ΅Π»ΡΠ½ΠΎΡΡΡ Π·Π°Β ΡΡΡΡ Π΄Π΅ΡΠΈΡΠΈΡΠ° ΠΏΡΠ΅Π΄Π»ΠΎΠΆΠ΅Π½ΠΈΡ Π½Π°Β Π²Π΅ΡΡ Π½ΠΈΡ ΠΎΡΠΌΠ΅ΡΠΊΠ°Ρ .
Π£ΡΠΎΠ²Π΅Π½Ρ ΡΡΠΎΠΈΠΌΠΎΡΡΠΈ $42Β 485 ΠΊΠΎΡΡΠ΅Π»ΠΈΡΡΠ΅Ρ ΡΒ Π±Π°Π»Π°Π½ΡΠΎΠΌ ΡΠΈΡΠΈΠ½Ρ ΠΈΒ Π΄ΠΎΡΡΡΠΏΠ½ΠΎΡΡΠΈ Π³ΠΎΡΠΎΠ΄ΡΠΊΠΎΠΉ ΠΈΠ½ΡΡΠ°ΡΡΡΡΠΊΡΡΡΡ ΡΠ°ΠΉΠΎΠ½Π° ΠΠ°Π³ΡΠ°ΡΠΈΠΎΠ½ΠΈ. ΠΠΈΠ»ΡΡ Π²ΠΊΠ»ΡΡΠ°Π΅Ρ ΠΏΡΠΎΠ΄ΡΠΌΠ°Π½Π½ΡΠ΅ ΠΎΠ±ΡΠ΅ΡΡΠ²Π΅Π½Π½ΡΠ΅ ΠΏΡΠΎΡΡΡΠ°Π½ΡΡΠ²Π° ΠΈΒ ΠΊΠΎΠΌΠΌΠ΅ΡΡΠ΅ΡΠΊΠΈΠ΅ ΠΏΠΎΠΌΠ΅ΡΠ΅Π½ΠΈΡ Π½Π°Β ΠΏΠ΅ΡΠ²ΠΎΠΌ ΡΡΠΎΠ²Π½Π΅, ΡΡΠΎ ΠΏΠΎΠ²ΡΡΠ°Π΅Ρ ΡΠ΄ΠΎΠ±ΡΡΠ²ΠΎ ΡΠ΅Π·ΠΈΠ΄Π΅Π½ΡΠΎΠ². Π¦Π΅Π½ΠΎΠ²ΠΎΠΉ ΠΏΠ°ΡΠ°ΠΌΠ΅ΡΡ ΠΎΡΡΠ°ΠΆΠ°Π΅Ρ Π΄Π΅ΡΠΈΡΠΈΡ ΠΏΡΠ΅Π΄Π»ΠΎΠΆΠ΅Π½ΠΈΡ Π²ΡΡΠΎΡΠ½ΡΡ Π°ΠΏΠ°ΡΡΠ°ΠΌΠ΅Π½ΡΠΎΠ² ΡΒ Π³ΠΎΡΠΎΠ²ΠΎΠΉ ΠΎΡΠ΄Π΅Π»ΠΊΠΎΠΉ Π²Β ΡΠ°Π΄ΠΈΡΡΠ΅ ΠΊΠΈΠ»ΠΎΠΌΠ΅ΡΡΠ° ΠΎΡΒ ΠΏΠΎΠ±Π΅ΡΠ΅ΠΆΡΡ. ΠΠΎΠ΄ΠΎΠ±Π½Π°Ρ ΡΡΡΡΠΊΡΡΡΠ° Π·Π°ΡΡΠ°Ρ ΠΎΠ±Π΅ΡΠΏΠ΅ΡΠΈΠ²Π°Π΅Ρ ΠΏΡΠ΅Π΄ΡΠΊΠ°Π·ΡΠ΅ΠΌΡΡ Π΄ΠΎΡ ΠΎΠ΄Π½ΠΎΡΡΡ ΠΈΒ ΡΡΡΠΎΠΉΡΠΈΠ²ΠΎΡΡΡ ΠΊΒ ΡΠ΅Π·ΠΎΠ½Π½ΡΠΌ ΠΊΠΎΠ»Π΅Π±Π°Π½ΠΈΡΠΌ ΡΡΡΠΈΡΡΠΈΡΠ΅ΡΠΊΠΎΠ³ΠΎ ΡΡΠ½ΠΊΠ°.
ΠΡΠ±ΡΠ°Π½Π½ΡΠΉ ΠΏΠ°ΡΠ°ΠΌΠ΅ΡΡ ΠΊΠ²Π°ΡΡΠΈΡΡ Π²ΠΏΠΈΡΠ°Π½ Π²Β ΠΊΠΎΠ½ΡΠ΅ΠΏΡΠΈΡ ΠΏΡΠ΅ΠΌΠΈΠ°Π»ΡΠ½ΠΎΠ³ΠΎ Π²Π΅ΡΡΠΈΠΊΠ°Π»ΡΠ½ΠΎΠ³ΠΎ ΠΏΡΠΎΠΆΠΈΠ²Π°Π½ΠΈΡ, Π³Π΄Π΅ ΠΏΡΠΈΠ²Π°ΡΠ½ΠΎΡΡΡ ΡΠΎΡΠ΅ΡΠ°Π΅ΡΡΡ ΡΒ Π΄ΠΎΡΡΡΠΏΠ½ΠΎΡΡΡΡ ΡΠ΅ΡΠ²ΠΈΡΠ°. ΠΠ°Π»Π°Π½Ρ Π²ΡΡΠΎΡΡ ΠΊΠΎΡΠΏΡΡΠΎΠ², Π³ΠΎΡΠΎΠ²Π°Ρ ΠΎΡΠ΄Π΅Π»ΠΊΠ° ΠΈΒ Π²ΠΈΠ΄Π΅ΠΎΠ½Π°Π±Π»ΡΠ΄Π΅Π½ΠΈΠ΅ ΡΠΎΡΠΌΠΈΡΡΡΡ Π±Π΅Π·ΠΎΠΏΠ°ΡΠ½ΡΡ ΠΈΒ ΡΡΠ³ΠΎΠ½ΠΎΠΌΠΈΡΠ½ΡΡ ΡΡΠ΅Π΄Ρ Π΄Π»ΡΒ ΠΆΠΈΠ·Π½ΠΈ. ΠΠ½Π²Π΅ΡΡΠΈΡΠΈΠΎΠ½Π½Π°Ρ Π»ΠΎΠ³ΠΈΠΊΠ° ΠΏΡΠΎΠ΅ΠΊΡΠ° ΠΎΠΏΠΈΡΠ°Π΅ΡΡΡ Π½Π°Β ΠΏΠΎΠ΄ΡΠ²Π΅ΡΠΆΠ΄ΡΠ½Π½ΡΠΉ ΡΠΏΡΠΎΡ ΠΊΡΡΠΎΡΡΠ½ΠΎΠ³ΠΎ Π³ΠΎΡΠΎΠ΄Π° ΠΠ°ΡΡΠΌΠΈ. Π‘ΡΠ°Π²Π½ΠΈΡΡ ΡΡΠ»ΠΎΠ²ΠΈΡ ΡΠ°ΡΡΡΠΎΡΠΊΠΈ ΠΈΒ ΡΡΠΎΡΠ½ΠΈΡΡ ΡΠ΅Ρ Π½ΠΈΡΠ΅ΡΠΊΠΈΠ΅ ΡΠΏΠ΅ΡΠΈΡΠΈΠΊΠ°ΡΠΈΠΈ ΠΌΠΎΠΆΠ½ΠΎ Π²Β ΡΠ°ΠΌΠΊΠ°Ρ ΠΈΠ½ΡΠΎΡΠΌΠ°ΡΠΈΠΎΠ½Π½ΠΎΠΉ Π²ΡΡΡΠ΅ΡΠΈ ΡΒ ΠΌΠ΅Π½Π΅Π΄ΠΆΠ΅ΡΠΎΠΌ ΠΊΠΎΠΌΠΏΠ»Π΅ΠΊΡΠ°.


