В Horizon Grand Residence представлены квартиры разнообразных планировок, включая однокомнатные, двухкомнатные и трёхкомнатные форматы, что позволяет выбрать оптимальное решение под задачи покупателя. Однокомнатные варианты подходят для инвестиций с фокусом на туристический спрос, тогда как просторные квартиры ориентированы на семьи или долгосрочное проживание. Каждая планировка разработана с учётом эргономики и видовых характеристик, обеспечивая рациональное использование пространства. Полная меблировка и наличие техники делают любой формат квартиры готовым к заселению сразу после завершения сделки.
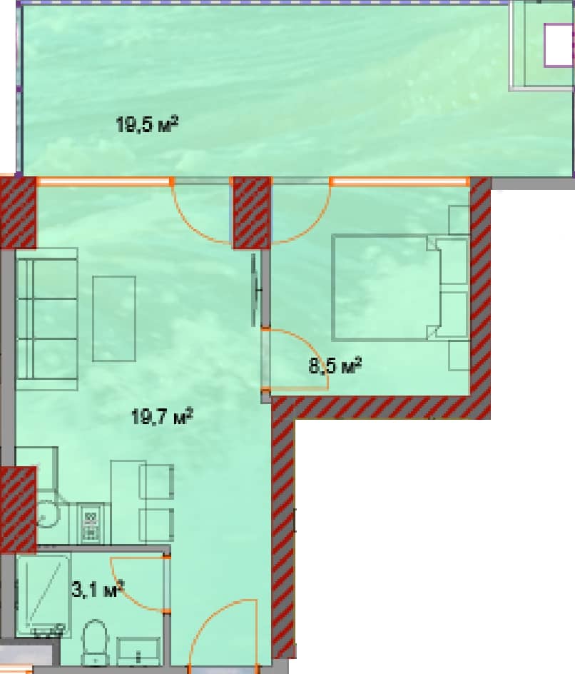
Квартира площадью 51.9 м² предлагает баланс между компактностью и простором, что делает её подходящей для пар или небольших семей, планирующих проживание у моря. Такой метраж позволяет выделить функциональные зоны для отдыха и повседневных задач, обеспечивая комфорт в условиях курортного ритма. Полная комплектация мебелью и техникой исключает необходимость закупки оборудования, сокращая время подготовки жилья к использованию для постоянного или сезонного пребывания.
Уровень 17 этажа соответствует предпочтениям широкой аудитории, выбирающей жильё с гармоничным соотношением высоты и удобства. Такой этаж востребован как для постоянного проживания, так и для краткосрочной аренды, поскольку обеспечивает стабильный комфорт без излишней удалённости от улицы. Локация на первой линии моря усиливает ценность квартиры, поддерживая интерес со стороны туристов и сезонных пользователей в течение всего курортного периода.
Стоимость $62 021 соответствует позиционированию Horizon Grand Residence в премиальном сегменте, подтверждённому качеством отделки, наличием кондиционирования и дизайнерскими решениями. Цена учитывает характеристики проекта, включая панорамные виды, зеркальные потолки и современную архитектуру. Сочетание этих параметров с локацией на побережье формирует обоснованную ценность объекта для требовательных покупателей, ищущих готовое решение высокого класса.
Разнообразие планировок от однокомнатных до трёхкомнатных квартир позволяет выбрать формат под задачи инвестора или резидента. Сочетание локации, меблировки и инфраструктуры комплекса создаёт условия для эффективной аренды или комфортного проживания. Уточнить наличие квартир и характеристики проекта можно у представителей компании.


