Покупка недвижимости в Horizon Grand Residence доступна напрямую от застройщика, что исключает участие посредников и снижает транзакционные издержки для покупателя. Такой формат сделки упрощает процесс оформления и обеспечивает прозрачность условий. Комплекс позиционируется как объект премиального класса с акцентом на качество отделки и инфраструктурное наполнение. Расположение на первой береговой линии в сочетании с готовностью квартир к заселению формирует высокую практическую ценность объекта для тех, кто ищет готовое жильё в центре курортной столицы Грузии без необходимости дополнительных вложений.
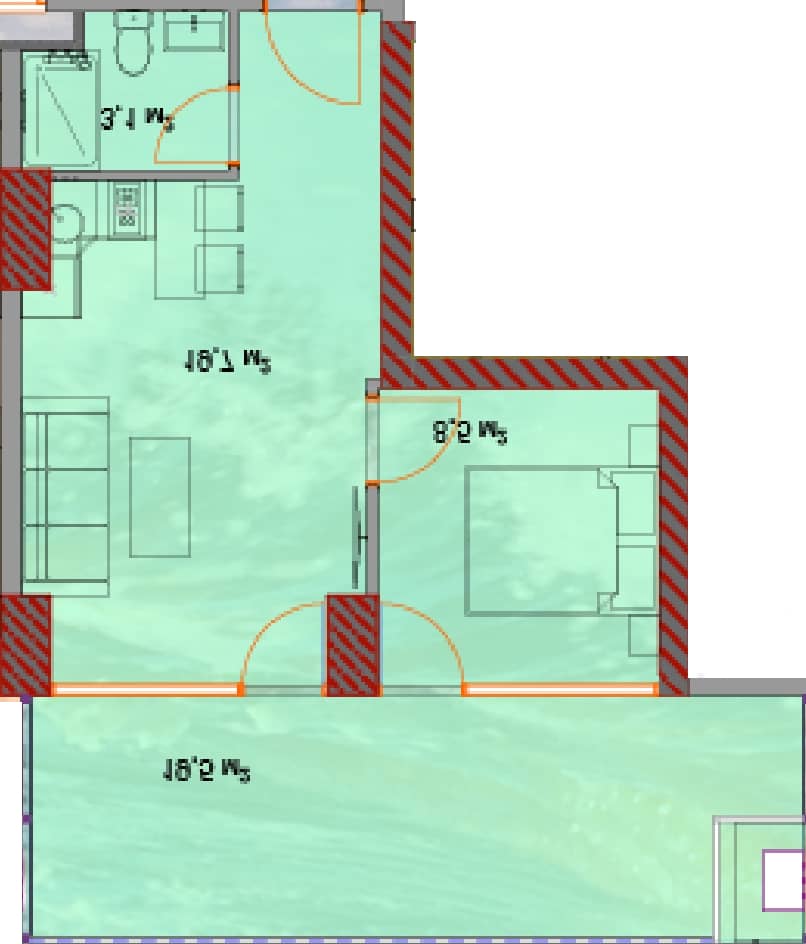
Квартира площадью 51.9 м² предлагает баланс между компактностью и простором, что делает её подходящей для пар или небольших семей, планирующих проживание у моря. Такой метраж позволяет выделить функциональные зоны для отдыха и повседневных задач, обеспечивая комфорт в условиях курортного ритма. Полная комплектация мебелью и техникой исключает необходимость закупки оборудования, сокращая время подготовки жилья к использованию для постоянного или сезонного пребывания.
Уровень 17 этажа соответствует предпочтениям широкой аудитории, выбирающей жильё с гармоничным соотношением высоты и удобства. Такой этаж востребован как для постоянного проживания, так и для краткосрочной аренды, поскольку обеспечивает стабильный комфорт без излишней удалённости от улицы. Локация на первой линии моря усиливает ценность квартиры, поддерживая интерес со стороны туристов и сезонных пользователей в течение всего курортного периода.
Стоимость $72 920 соответствует позиционированию Horizon Grand Residence в премиальном сегменте, подтверждённому качеством отделки, наличием кондиционирования и дизайнерскими решениями. Цена учитывает характеристики проекта, включая панорамные виды, зеркальные потолки и современную архитектуру. Сочетание этих параметров с локацией на побережье формирует обоснованную ценность объекта для требовательных покупателей, ищущих готовое решение высокого класса.
Первая береговая линия в центре Батуми представляет собой ограниченный ресурс, что усиливает ценность объектов Horizon Grand Residence на рынке. Полная комплектация и премиальные характеристики отделки дополняют преимущества локации, формируя рациональное предложение в своём сегменте. Для получения информации о комплексе рекомендуется обратиться к специалистам по недвижимости.



