Представленный объект недвижимости в ЖК Lagoon Resort относится к премиальному сегменту и спроектирован в формате mixed-use, где жилое пространство интегрировано в развитую инфраструктуру сервиса. Архитектурная концепция здания базируется на использовании панорамного остекления и энергоэффективных материалов, что гарантирует комфорт и соответствие современным стандартам строительства. Наличие собственной управляющей компании и ресепшена позволяет владельцам делегировать процессы обслуживания, превращая жилье в эффективный инвестиционный актив. Локация на Новом бульваре делает комплекс эпицентром туристической активности города, что важно для долгосрочного владения.
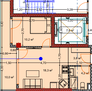
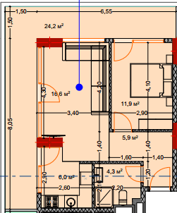
Объект площадью 72.4 м² обеспечивает идеальный баланс между стоимостью владения и уровнем комфорта в ЖК Lagoon Resort. Данный формат позволяет организовать уютную гостиную и спальную зону, что делает его привлекательным для семейных пар. Наличие развитой инфраструктуры комплекса, включая подземный паркинг и рекреационные зоны, дополняет преимущества такого метража, обеспечивая высокое качество жизни на побережье.
Расположение на среднем 6 этаже считается «золотым стандартом» в Lagoon Resort, предлагая оптимальное сочетание видов и комфорта. С этой высоты панорамное остекление позволяет в полной мере насладиться городским ландшафтом Нового бульвара и перспективой побережья. Это сбалансированное решение для инвесторов, так как средние этажи традиционно пользуются стабильным спросом на рынке аренды и перепродажи.
Стоимость $166 520 за данную квартиру полностью соответствует премиальному статусу проекта и его расположению на первой береговой линии. Инвестиция в Lagoon Resort на текущем этапе позволяет зайти в актив с высоким потенциалом органического роста стоимости. Цена обоснована качеством материалов, энергоэффективными решениями и доступом к инфраструктуре, которая редко встречается в типовой застройке Батуми.
Квартира в Lagoon Resort — это стратегический выбор для тех, кто ценит близость к морю и инфраструктуру Нового бульвара. Сочетание премиального сервиса и паркового окружения делает этот объект одним из самых востребованных в Батуми. Для получения подробного расчета окупаемости и уточнения условий покупки рекомендуется воспользоваться профессиональной консультацией.



