Покупка квартиры в Montemar Gonio ориентирована на инвесторов, стремящихся капитализировать вложения за счет дефицита качественных площадей в локации Гонио. Район активно осваивается элитными резиденциями и брендовыми отелями, что способствует стабильному росту стоимости квадратного метра и земли. Объект позиционируется как ликвидный инструмент, востребованный среди аудитории, которая ценит природный ландшафт и высокий уровень сервиса. Наличие профессиональной управляющей компании позволяет владельцу перевести управление недвижимостью в формат пассивного дохода, обеспечивая стабильную загрузку за счет уникальных характеристик района и самого жилого комплекса.
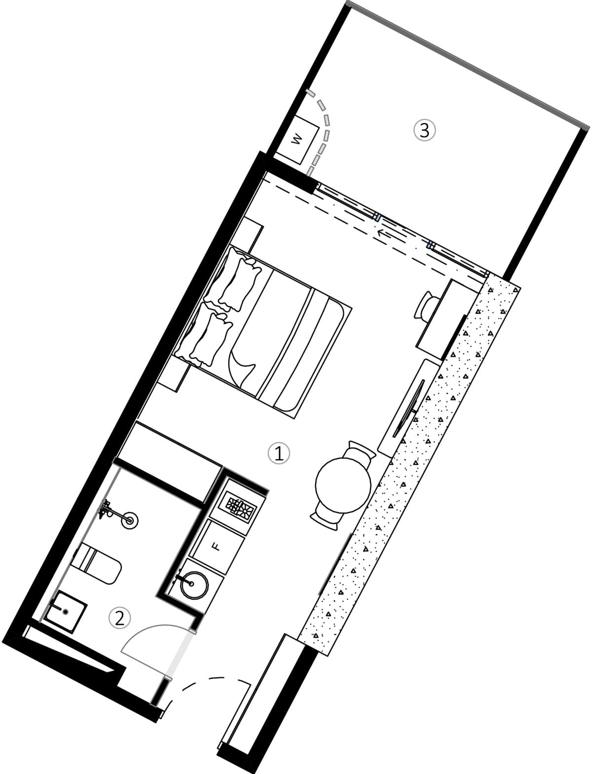
Жилое пространство площадью 38.2 м² отлично подходит для индивидуального сезонного отдыха или проживания пары. Благодаря панорамному остеклению и грамотной планировке, квартира не ощущается тесной, а функциональность помещений соответствует стандартам бизнес-класса. Подобные лоты в Гонио быстро находят арендаторов благодаря чистоте локации и высокому качеству сервиса в самом здании.
Расположение на 4 этаже позволяет в полной мере оценить современную архитектуру Montemar Gonio и окружающий ландшафт. Уровень этажа находится выше большинства соседних строений, что гарантирует стабильный приток света и ощущение свободного пространства. Квартиры на средних этажах традиционно считаются наиболее ликвидными на рынке недвижимости Батуми благодаря своей универсальности.
Цена $117 656 отражает уникальность локации в Гонио, где дефицит участков под качественную застройку на первой береговой линии постоянно растет. Приобретая квартиру по такой стоимости, вы инвестируете в район, который сохраняет статус элитного пригорода Батуми. Близость к аэропорту и чистейшие пляжи Аджарии обеспечивают объекту высокий потенциал капитализации к моменту завершения строительства.
Данный объект представляет собой надежный инвестиционный инструмент с понятным горизонтом окупаемости за счет профессионального управления и уникальной локации. Дефицит качественных площадей в районе Гонио обеспечивает стабильный рост капитализации и высокий интерес со стороны арендаторов. Рассмотреть все доступные варианты и сравнить характеристики апартаментов можно в рамках детального ознакомления с проектом.


