Апартаменты располагаются в премиальном проекте Palm Residence, концепция которого разработана с учетом климатических особенностей прибрежной зоны Батуми. Проживание здесь подразумевает интеграцию в самодостаточную экосистему, где управляющая компания берет на себя комплексное обслуживание недвижимости. Близость к парку Нового бульвара и береговой линии в ста метрах от комплекса создает отличные условия для отдыха на природе. Инфраструктура проекта, включающая фитнес-зал, круглосуточную охрану и подземный паркинг, полностью адаптирована под запросы экспатов и удаленных сотрудников в Грузии для длительного пребывания.
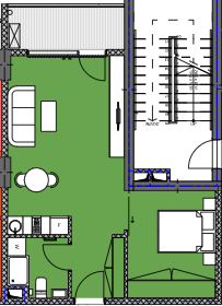
Наличие 46.81 м² полезной жилой площади открывает широкие возможности для грамотного зонирования интерьера с учетом личных предпочтений владельца. Подобный метраж обеспечивает необходимый простор для постоянного нахождения у моря, когда внутренний комфорт жилья органично дополняется возможностью быстро выйти к бассейну или посетить летний кинотеатр на крыше.
Размещение объекта недвижимости на 16 этаже обеспечивает привилегированную близость к уникальной инфраструктуре эксплуатируемой кровли комплекса. Резиденты смогут с легкостью посещать летний кинотеатр и наслаждаться панорамами Черного моря, находясь буквально в нескольких шагах от собственной квартиры в верхней части премиального здания.
Учитывая расположение на 16 этаже, стоимость жилья на уровне $74 896 выглядит исключительно рациональным вложением в персональный комфорт. Подобный прайс отражает грамотный баланс между качеством монолитной постройки, экологичными материалами фасада и возможностью интегрироваться в развитую курортную среду с гостиничными сервисами внутри дома.
Сочетание тишины престижного района Аэропорт, современной туристической инфраструктуры и полной автономности апарт-отеля делает этот вариант логичным выбором для жизни у побережья. Чтобы получить исчерпывающую информацию о проекте и детально сравнить планировки, советуем обратиться за профессиональной консультацией.



