ЖК «Панорама» расположен в сформированном районе Тамари всего в сорока метрах от береговой линии Батуми, что обеспечивает прямой доступ к морскому побережью без необходимости пересекать оживлённые трассы. Проект от Tower Group предлагает премиальные апартаменты в двух сорокаэтажных башнях, создавая редкое сочетание курортной локации и развитой городской среды. Такое позиционирование формирует устойчивый спрос как у постоянных резидентов, так и у участников арендного рынка, ориентированных на краткосрочную сдачу. Выбор данного объекта гарантирует баланс между тишиной для жизни и доступностью туристической инфраструктуры.
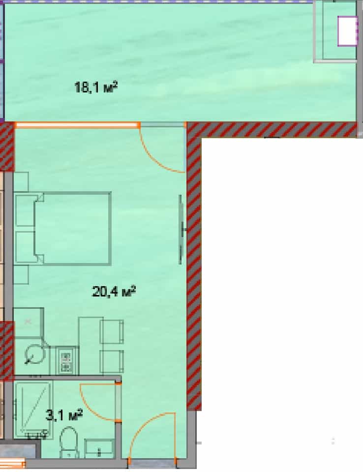
Метраж 41.2 м² даёт возможность организовать полноценное жилое пространство с чётким разделением на зоны для сна, работы и приёма гостей. Однокомнатные форматы этого диапазона оптимальны для экспатов и специалистов, планирующих долгосрочный переезд в Грузию с сохранением привычного комфорта. Наличие раздельных планировок поддерживает стабильный спрос со стороны арендаторов, ориентирующихся на среднерыночные ставки района. Объект сочетает практичность с высоким потенциалом капитализации.
Расположение на 12 этаже обеспечивает удобный доступ к выходу и сервисам комплекса без ожидания лифта, что ценится при активных перемещениях. Низкие уровни оптимальны для резидентов, предпочитающих оперативное перемещение и быструю интеграцию в благоустроенную территорию проекта. Подобная локация создаёт ощущение камерности и снижает зависимость от вертикального транспорта, сохраняя при этом все преимущества первой линии. Формат подходит для семей с детьми и пожилых жильцов.
Значение $105 060 включает в себя премиальные видовые характеристики, которые редки для массового сегмента новостроек курортного города с панорамным остеклением. Стоимость формируется под влиянием дефицита участков на первой береговой линии и подтверждения сроков сдачи комплекса застройщиком. Подобное ценообразование защищает инвестиции от волатильности и поддерживает ликвидность на вторичном рынке в долгосрочной перспективе.
Интеграция жилья в сформированный район Батуми обеспечивает стабильный интерес со стороны инвесторов и постоянных резидентов. ЖК «Панорама» демонстрирует логику устойчивого развития, где каждая характеристика объекта работает на долгосрочную окупаемость. Запрос экспертной оценки поможет выявить наиболее подходящие варианты метража и этажа.


