Жизнь в комплексе предполагает доступ к городским удобствам Аллеи Героев и одновременно приватность закрытого сообщества. Район окружен современными жилыми комплексами, отелями и точками притяжения, такими как Batumi Mall и танцующие фонтаны. Для владельца это означает возможность наслаждаться курортным образом жизни с сервисным обслуживанием, не жертвуя доступом к деловой и развлекательной инфраструктуре курортного города.
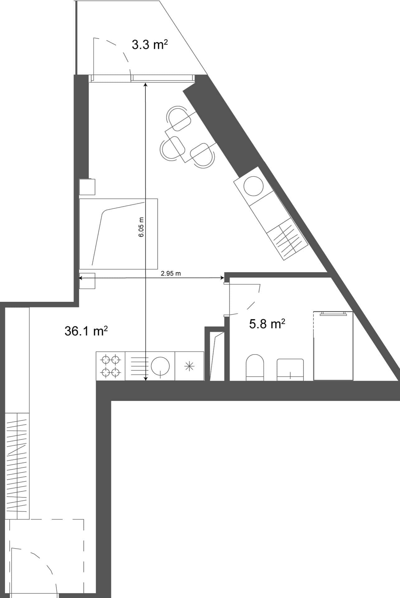
Квартира площадью 39.4 м² относится к компактному формату, который наиболее востребован для сценария lock-and-leave в курортном городе. Такой метраж позволяет оптимизировать расходы на эксплуатацию и обслуживание, сохраняя при этом полноценную функциональность студии или однокомнатного жилья. В рамках Ramada Residences компактные лоты легко позиционируются на рынке краткосрочной аренды благодаря низкой стоимости входа для арендатора.
Квартира на 25 этаже воспринимается как надежный актив с предсказуемыми характеристиками освещенности и проветривания. Среднее расположение позволяет избегать потенциальных проблем верхних уровней, сохраняя при этом хорошие видовые характеристики на город и море. Для инвестора это означает широкий пул потенциальных арендаторов, так как данный этаж не имеет специфических ограничений или предпочтений.
Стоимость $154 948 следует рассматривать в контексте долгосрочного владения, где важны качество управления и сила локации после ввода объекта. На стадии строительства цена входа позволяет зафиксировать стоимость до роста, связанного с развитием Аллеи Героев и завершением проекта в 2029 году. Рациональный подход к цене учитывает не только текущие метры, но и будущий потенциал доходности актива.
Квартира в Ramada Residences сочетает в себе ликвидность центральной локации, преимущества брендированной резиденции и сервисное управление. Этот проект подходит для тех, кто выбирает Батуми как место для жизни, аренды и долгосрочного владения с понятной логикой эксплуатации. Рекомендуется уточнить детали планировки и условия приобретения, чтобы оценить соответствие объекта вашим инвестиционным целям.


