Жилой комплекс Optima Residence располагается в динамично развивающемся районе Аэропорта на улице Адлиа, всего в 325 метрах от морской береговой линии. Проект реализуется застройщиком Elt Building, который с 2017 года ввёл в эксплуатацию девять объектов общей площадью более 300 000 м². Формат жилья включает 18-этажное здание с бассейном, фитнес-залом и круглосуточным видеонаблюдением, предлагая резидентам функциональные квартиры от 67 до 139 м². Локация сохраняет баланс цены и транспортной доступности, поддерживая стабильный арендный спрос на фоне растущей инфраструктуры района.
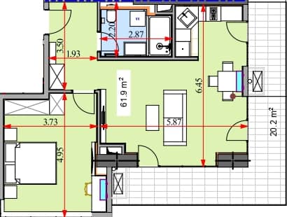
Квартира площадью 36.3 м² относится к компактным форматам, которые оптимально подходят для стартовых инвестиций или комфортного проживания одного человека. Такой метраж обеспечивает эффективное использование пространства в условиях развивающегося района Аэропорта, где аренда остаётся востребованной среди специалистов и транзитных гостей. Наличие встроенного бассейна и фитнес-зала в комплексе компенсирует ограниченные внутренние площади, формируя полноценную жилую среду.
Помещение на 14 этаже обеспечивает равномерное распределение естественного освещения и снижает воздействие ветровых нагрузок в прибрежной зоне Батуми. Средний ярус здания удобен для ежедневного использования, так как лифтовые системы быстро доставляют резидентов к коммерческим зонам и фитнес-центру. Подобная этажность сохраняет ликвидность квартиры, соответствуя среднему спросу на рынке спальных районов.
Стоимость в $43 560 соответствует среднему уровню предложений в Батуми при сохранении архитектуры, характерной для премиальных линеек застройщика. Такой финансовый показатель делает объект подходящим для пассивного дохода, поскольку транспортная доступность и близость к побережью поддерживают постоянный интерес арендаторов. Проект закрывает потребность в ликвидной недвижимости без переплаты за статус первой линии.
Итоги описания подтверждают, что квартира в 18-этажном здании располагает сбалансированными характеристиками для жизни или сдачи. Инфраструктура комплекса и расположение на улице Адлиа обеспечивают комфорт без переплаты. Для получения сведений о доступных планировках и текущих параметрах предусмотрено обращение в службу поддержки.


