Market analysis within this segment reveals a consistent preference for compact, efficiently planned units that require minimal capital entry but generate accelerated rental turnover. The development responds to this dynamic by standardizing floor plans that cater precisely to short-term visitors seeking independent coastal accommodation. Coupled with professional property oversight, the format guarantees predictable operational cycles and reduces vacancy risks during transitional periods.
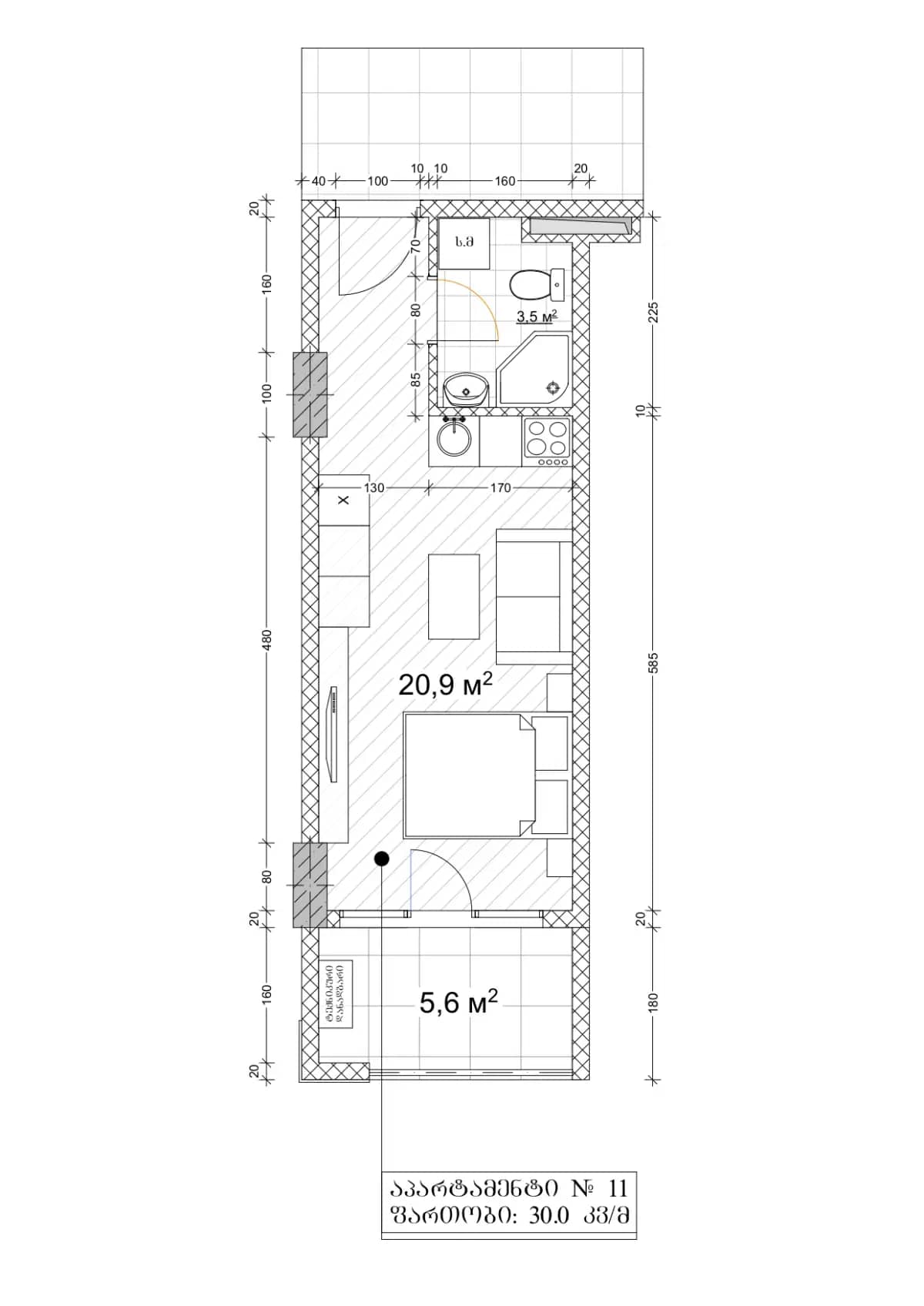
Market data consistently highlights that units sized at 30 m² achieve the fastest booking rates due to their accessible pricing structure. Smaller footprints require lower capital while generating proportionate seasonal revenue, making them ideal for investors focused on quick liquidity cycles.
Units positioned at 9 height redefine interior boundaries by drawing exterior landscapes directly into the visual field. The vertical distance creates a sense of spaciousness that complements compact floor plans, making even moderate layouts feel expansive. This perceptual shift adds considerable experiential value.
Offering the asset at $39,000 aligns precisely with the liquidity requirements of the short-term rental sector, where rapid booking cycles dictate optimal pricing thresholds. The figure sits comfortably below premium coastal alternatives while preserving essential comfort standards. This positioning accelerates capital recovery timelines.
Merging accessible entry parameters with managed infrastructure simplifies the transition from acquisition to income generation. Cross-referencing secured parking and commercial spaces confirms operational support. Technical assessments are accessible for verification. This enables confident planning.



