The Geuz Towers project introduces a comprehensive business-class concept with 5-star hotel infrastructure integrated into a residential format. Residents benefit from a gated, secured territory that includes panoramic rooftop swimming pools, a professional SPA center, and a modern fitness club. A panoramic restaurant with sea views serves as a centerpiece for leisure, while the ground floor accommodates commercial premises for daily needs. The presence of a dedicated management company ensures high service standards and proper maintenance of all shared spaces. This infrastructure-rich environment is tailored for those who seek the comfort of a luxury resort combined with the privacy and convenience of a private seaside residence.
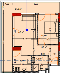
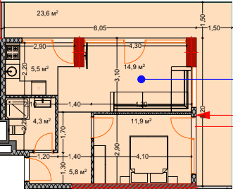
The medium-sized format of 70.65 m² is a popular choice in the business-class segment of the Kobuleti market. It offers a combination of living space and luxury, appealing to tenants who want more than a standard hotel room for their stay on the first shoreline.
Living on the 22 floor allows for a peaceful atmosphere high above the promenade. The middle level of the tower is often preferred by residents who seek a mix of panoramic visibility and the architectural harmony of the 45-story project.
With the price set at $127,354, the project remains accessible through flexible interest-free installment plans during the construction stage. This financial approach allows for a structured acquisition of a premium 22 floor apartment in one of Kobuleti’s most significant developments.
Geuz Towers offers a rare combination of a first-line location and comprehensive premium infrastructure in the quiet resort area of Kobuleti. This property is a strong choice for those seeking a liquid asset with direct beach access. You can request a consultation to learn more about this project.


