Positioned on the first shoreline of Batumi, Horizon Grand Residence capitalizes on the limited availability of coastal land in the city center. The complex offers premium apartments with complete furnishing, including appliances and designer elements, which minimizes downtime between bookings for rental strategies. The location ensures proximity to the embankment, restaurants, and entertainment infrastructure, driving consistent occupancy during the resort season. Buyers benefit from a simplified registration process and the ability to acquire property under the same conditions as residents, making the complex a rational choice in the premium market.
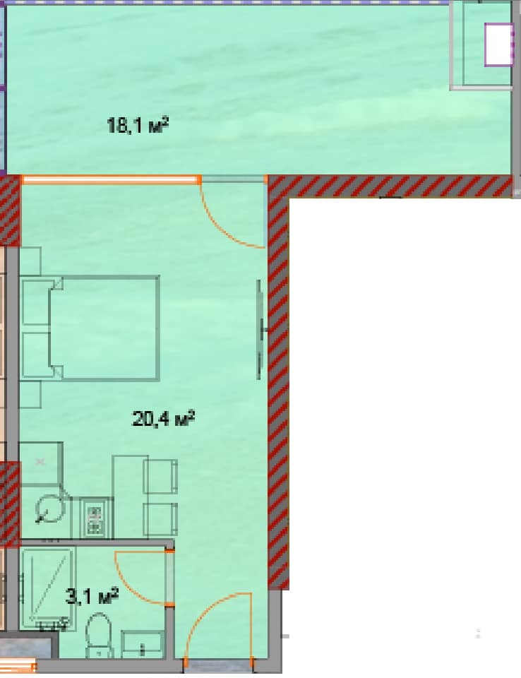
A layout of 42.4 m² in Horizon Grand Residence offers sufficient space for long-term stays or rental to small groups. The apartment includes a complete set of furniture and appliances, ensuring immediate usability. The central location on the first shoreline enhances the value of this format, as it meets the requirements of tenants seeking proximity to the sea and city attractions. The premium finishing with mirrored ceilings and modern design adds to the attractiveness of the property for diverse usage scenarios.
An apartment situated on the 11 floor offers an optimal balance between view characteristics and comfort of access. This level provides a favorable perspective of the Black Sea and city skyline while maintaining convenient connectivity to the building’s services. In Horizon Grand Residence, middle floors are often preferred for their equilibrium of height and practicality, complemented by fully furnished interiors and a prime location on the first shoreline of Batumi.
The cost of the apartment, set at $47,276, reflects the combination of a first-line location and fully furnished condition. The price incorporates premium finishing, furniture, and appliances, which eliminates additional expenses for renovation. In Horizon Grand Residence, the value is supported by the scarcity of coastal land in central Batumi and the stable demand from the tourist market, ensuring rational investment logic for buyers.
The project delivers premium real estate in the center of Batumi, featuring complete furnishing and modern design. Direct sea access, walking proximity to the embankment, and purchase without intermediaries make the complex a rational option for investors and buyers seeking ready-to-use housing on the coast.


