Horizon Grand Residence stands as a premium residential complex positioned on the first shoreline of the Black Sea in the central district of Batumi. The project combines a scarce coastal location with fully finished apartments, offering a turnkey solution for both residence and investment. Every unit features panoramic views of the sea and city skyline, supported by modern design elements such as mirrored ceilings and high-quality furnishings from leading manufacturers. The complex addresses the demand for elite seaside housing with direct access to the embankment, tourist infrastructure, and business activity, ensuring high liquidity in the secondary market.
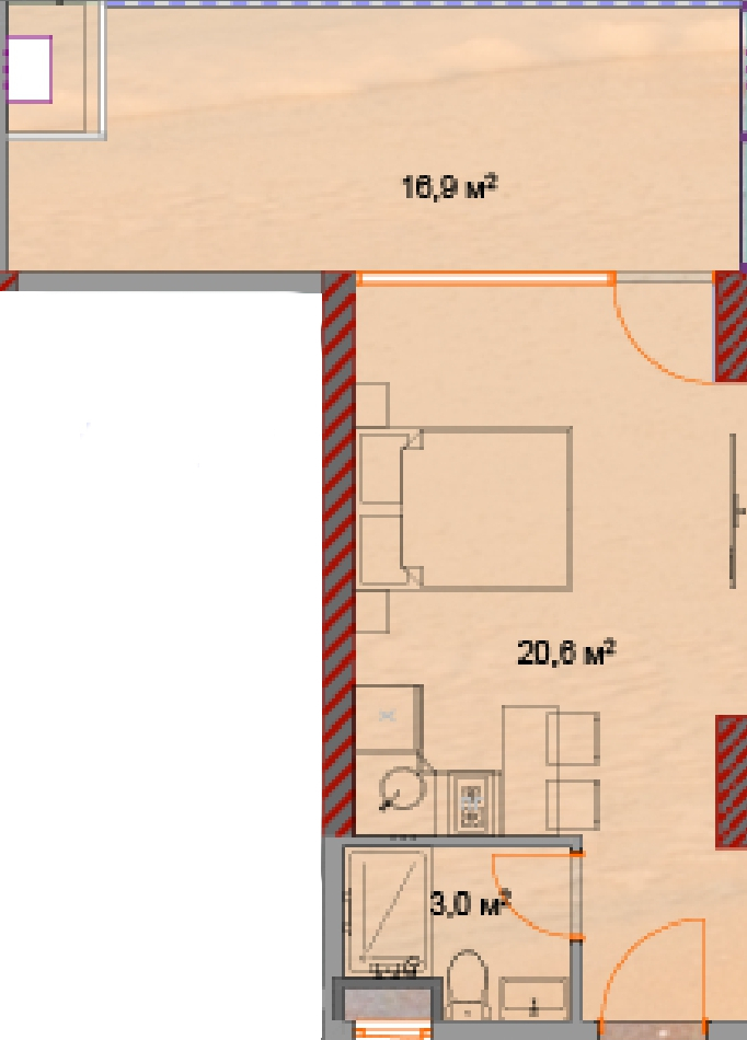
A layout of 41.2 m² in Horizon Grand Residence offers sufficient space for long-term stays or rental to small groups. The apartment includes a complete set of furniture and appliances, ensuring immediate usability. The central location on the first shoreline enhances the value of this format, as it meets the requirements of tenants seeking proximity to the sea and city attractions. The premium finishing with mirrored ceilings and modern design adds to the attractiveness of the property for diverse usage scenarios.
An apartment situated on the 13 floor offers an optimal balance between view characteristics and comfort of access. This level provides a favorable perspective of the Black Sea and city skyline while maintaining convenient connectivity to the building’s services. In Horizon Grand Residence, middle floors are often preferred for their equilibrium of height and practicality, complemented by fully furnished interiors and a prime location on the first shoreline of Batumi.
A cost of $46,762 for this apartment includes the benefits of a turnkey solution in the center of Batumi. The price covers furniture, appliances, and designer finishes, allowing immediate rental or residence. The first-line position ensures sustained demand, which justifies the investment through potential occupancy rates. The absence of intermediary commissions further optimizes the total acquisition cost for the buyer.
Horizon Grand Residence ensures a high standard of living through its location, finishing quality, and comprehensive furnishing. The project addresses the needs of buyers focused on rental income or personal residence, leveraging the advantages of the central seafront and transparent purchase terms.


