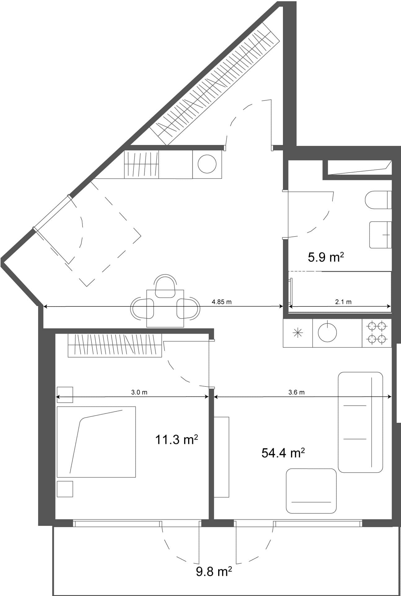
1-ოთახიანი ბინა, 64.2 მ², 38 სართული პროექტში "Ramada Residences"
ბათუმი, ხიმშიაშვილი, ფიროსმანის ქ. 10

ბინის შესახებ
კოდი
13,550,367ნუმერაცია
3805სართული
38ოთახიანობა
1-ოთახიანი
ფასი
$232,157ფასი / მ²
$3,616საერთო ფართობი
64.2 მ²
სტუდიო
$135,1311-ოთახიანი ბინა
$175,7712-ოთახიანი ბინა
$248,172ფასი მ²-ზე
$3,175კლასი
premium
სართულები
45ლიფტი
დიახლიფტების რაოდენობა
4ზღვამდე მანძილი
356 მუბანი
ხიმშიაშვილი


