ΠΠ°ΡΡΡΠΎΠΉΡΠΈΠΊ H Group ΠΈΠΌΠ΅Π΅Ρ ΠΏΠΎΠ΄ΡΠ²Π΅ΡΠΆΠ΄Π΅Π½Π½ΡΠΉ ΠΎΠΏΡΡ ΡΠ΅Π°Π»ΠΈΠ·Π°ΡΠΈΠΈ ΠΊΡΡΠΎΡΡΠ½ΠΎΠΉ Π½Π΅Π΄Π²ΠΈΠΆΠΈΠΌΠΎΡΡΠΈ Π²Β ΠΠ°ΡΡΠΌΠΈ. ΠΠ°Π΄Π΅ΠΆΠ½ΠΎΡΡΡ Π΄Π΅Π²Π΅Π»ΠΎΠΏΠ΅ΡΠ° ΠΈΒ Π·Π°Π²Π΅ΡΡΠ΅Π½Π½Π°Ρ ΡΡΠ°Π΄ΠΈΡ ΡΡΡΠΎΠΈΡΠ΅Π»ΡΡΡΠ²Π° ΠΊΠΎΠΌΠΏΠ»Π΅ΠΊΡΠ° ΡΠ½ΠΈΠΆΠ°ΡΡ ΡΠΈΡΠΊΠΈ Π΄Π»ΡΒ ΠΏΠΎΠΊΡΠΏΠ°ΡΠ΅Π»Ρ. ΠΡΡ ΠΈΡΠ΅ΠΊΡΡΡΠ° ΠΏΡΠΎΠ΅ΠΊΡΠ° Π²ΠΊΠ»ΡΡΠ°Π΅Ρ Π΄Π²Π° 40-ΡΡΠ°ΠΆΠ½ΡΡ ΠΊΠΎΡΠΏΡΡΠ°, ΠΎΠ±Π΅ΡΠΏΠ΅ΡΠΈΠ²Π°ΡΡΠΈΡ ΠΏΠ°Π½ΠΎΡΠ°ΠΌΠ½ΡΠ΅ Π²ΠΈΠ΄Ρ Π½Π°Β ΠΌΠΎΡΠ΅ ΠΈΒ Π³ΠΎΡΠΎΠ΄. ΠΠ½ΡΡΠ°ΡΡΡΡΠΊΡΡΡΠ° ΡΠ°ΠΉΠΎΠ½Π° ΡΠ°Π·Π²ΠΈΡΠ°, Π²Β ΠΏΠ΅ΡΠ΅ΠΉ Π΄ΠΎΡΡΡΠΏΠ½ΠΎΡΡΠΈ Π½Π°Ρ ΠΎΠ΄ΡΡΡΡ ΠΌΠ°Π³Π°Π·ΠΈΠ½Ρ ΠΈΒ ΠΊΠ°ΡΠ΅, ΡΡΠΎ Π²Π°ΠΆΠ½ΠΎ Π΄Π»ΡΒ ΠΊΠΎΠΌΡΠΎΡΡΠ½ΠΎΠ³ΠΎ ΠΏΡΠΎΠΆΠΈΠ²Π°Π½ΠΈΡ.
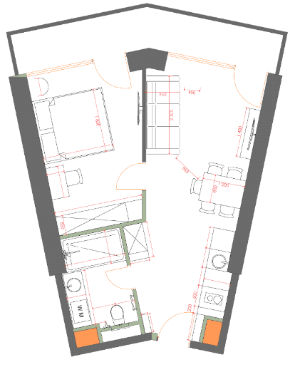
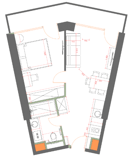
ΠΠ΅ΡΡΠ°ΠΆ 49.63Β ΠΌΒ² ΠΏΡΠ΅Π΄ΡΡΠ°Π²Π»ΡΠ΅Ρ ΡΠΎΠ±ΠΎΠΉ ΡΡΡΠΎΠΉΡΠΈΠ²ΡΠΉ ΠΈΠ½Π²Π΅ΡΡΠΈΡΠΈΠΎΠ½Π½ΡΠΉ Π°ΠΊΡΠΈΠ² ΡΒ ΡΠΈΡΠΎΠΊΠΈΠΌ ΠΏΡΠ»ΠΎΠΌ Π°ΡΠ΅Π½Π΄Π°ΡΠΎΡΠΎΠ². Π’Π°ΠΊΠΎΠ΅ ΠΆΠΈΠ»ΡΠ΅ Π»Π΅Π³ΡΠ΅ ΡΠ΄Π°ΡΡ Π²Β Π΄ΠΎΠ»Π³ΠΎΡΡΠΎΡΠ½ΡΡ Π°ΡΠ΅Π½Π΄Ρ ΠΌΠ΅ΡΡΠ½ΡΠΌ ΠΆΠΈΡΠ΅Π»ΡΠΌ ΠΈΠ»ΠΈΒ ΡΠΊΡΠΏΠ°ΡΠ°ΠΌ. Π£Π½ΠΈΠ²Π΅ΡΡΠ°Π»ΡΠ½ΠΎΡΡΡ ΠΏΠ»Π°Π½ΠΈΡΠΎΠ²ΠΊΠΈ ΠΏΠΎΠ²ΡΡΠ°Π΅Ρ Π»ΠΈΠΊΠ²ΠΈΠ΄Π½ΠΎΡΡΡ ΠΎΠ±ΡΠ΅ΠΊΡΠ° ΠΏΡΠΈΒ ΠΏΠ΅ΡΠ΅ΠΏΡΠΎΠ΄Π°ΠΆΠ΅. ΠΠ½Π²Π΅ΡΡΠΎΡ ΠΏΠΎΠ»ΡΡΠ°Π΅Ρ Π³ΠΈΠ±ΠΊΠΈΠΉ ΠΈΠ½ΡΡΡΡΠΌΠ΅Π½Ρ Π΄Π»ΡΒ ΡΠΏΡΠ°Π²Π»Π΅Π½ΠΈΡ Π½Π΅Π΄Π²ΠΈΠΆΠΈΠΌΠΎΡΡΡΡ Π²Β ΠΊΡΡΠΎΡΡΠ½ΠΎΠΉ Π·ΠΎΠ½Π΅.
Π£ΡΠΎΠ²Π΅Π½Ρ 33 ΠΎΠ±Π΅ΡΠΏΠ΅ΡΠΈΠ²Π°Π΅Ρ ΠΌΠ°ΠΊΡΠΈΠΌΠ°Π»ΡΠ½ΡΡ ΠΏΡΠΈΠ²Π°ΡΠ½ΠΎΡΡΡ ΠΈΒ Π·Π°ΡΠΈΡΡ ΠΎΡΒ ΡΠ»ΠΈΡΠ½ΠΎΠ³ΠΎ ΡΡΠΌΠ° ΡΠ°ΠΉΠΎΠ½Π° ΠΡΡΠΎΠΏΠΎΡΡ. ΠΠΈΠ·Π½Ρ Π½Π°Β Π²Π΅ΡΡ Π½ΠΈΡ ΡΡΠ°ΠΆΠ°Ρ Π°ΡΡΠΎΡΠΈΠΈΡΡΠ΅ΡΡΡ ΡΒ Π²ΡΡΠΎΠΊΠΈΠΌ ΡΡΠ°ΡΡΡΠΎΠΌ ΠΈΒ ΠΊΠΎΠΌΡΠΎΡΡΠΎΠΌ. ΠΠΎΠ·Π΄ΡΡ Π·Π΄Π΅ΡΡ ΡΠΈΡΠ΅, Π°Β ΠΈΠ½ΡΠΎΠ»ΡΡΠΈΡ Π»ΡΡΡΠ΅, ΡΡΠΎ Π²Π°ΠΆΠ½ΠΎ Π΄Π»ΡΒ ΠΏΠΎΡΡΠΎΡΠ½Π½ΠΎΠ³ΠΎ ΠΏΡΠΎΠΆΠΈΠ²Π°Π½ΠΈΡ. Π’Π°ΠΊΠΈΠ΅ ΠΊΠ²Π°ΡΡΠΈΡΡ ΡΠ°ΡΡΠΎ Π²ΡΠ±ΠΈΡΠ°ΡΡ Π΄Π»ΡΒ ΡΠΎΠ±ΡΡΠ²Π΅Π½Π½ΠΎΠ³ΠΎ ΠΈΡΠΏΠΎΠ»ΡΠ·ΠΎΠ²Π°Π½ΠΈΡ ΠΈΠ»ΠΈΒ ΠΏΡΠ΅ΠΌΠΈΠ°Π»ΡΠ½ΠΎΠΉ Π°ΡΠ΅Π½Π΄Ρ.
Π¦Π΅Π½Π° $124Β 075 ΠΏΠΎΠ·Π²ΠΎΠ»ΡΠ΅Ρ Π²ΠΎΡΠΏΠΎΠ»ΡΠ·ΠΎΠ²Π°ΡΡΡΡ ΡΠ°ΡΡΡΠΎΡΠΊΠΎΠΉ Π±Π΅Π·Β ΡΠ΄ΠΎΡΠΎΠΆΠ°Π½ΠΈΡ Π½Π°Β Π²ΡΠ³ΠΎΠ΄Π½ΡΡ ΡΡΠ»ΠΎΠ²ΠΈΡΡ . ΠΠ΅ΡΠ²ΡΠΉ Π²Π·Π½ΠΎΡ 30% ΠΈΒ ΡΡΠΎΠΊ 36 ΠΌΠ΅ΡΡΡΠ΅Π² ΠΎΠ±Π»Π΅Π³ΡΠ°ΡΡ ΡΠΈΠ½Π°Π½ΡΠΎΠ²ΡΡ Π½Π°Π³ΡΡΠ·ΠΊΡ Π½Π°Β ΠΈΠ½Π²Π΅ΡΡΠΎΡΠ°. Π’Π°ΠΊΠ°Ρ ΠΏΡΠΎΠ³ΡΠ°ΠΌΠΌΠ° Π΄Π΅Π»Π°Π΅Ρ ΠΏΠΎΠΊΡΠΏΠΊΡ Π΄ΠΎΡΡΡΠΏΠ½ΠΎΠΉ Π±Π΅Π·Β Π½Π΅ΠΎΠ±Ρ ΠΎΠ΄ΠΈΠΌΠΎΡΡΠΈ ΠΏΡΠΈΠ²Π»Π΅ΡΠ΅Π½ΠΈΡ ΠΊΡΠ΅Π΄ΠΈΡΠ½ΡΡ ΡΡΠ΅Π΄ΡΡΠ². ΠΠΎΠ·ΠΌΠΎΠΆΠ½ΠΎΡΡΡ ΡΠ°ΡΠΏΡΠ΅Π΄Π΅Π»ΠΈΡΡ ΠΏΠ»Π°ΡΠ΅ΠΆ ΠΏΠΎΠ²ΡΡΠ°Π΅Ρ Π»ΠΈΠΊΠ²ΠΈΠ΄Π½ΠΎΡΡΡ Π²Π»ΠΎΠΆΠ΅Π½ΠΈΠΉ Π²Β Π½Π΅Π΄Π²ΠΈΠΆΠΈΠΌΠΎΡΡΡ.
ΠΡΠΎΠ΅ΠΊΡ ΠΎΡΒ H Group ΠΏΡΠ΅Π΄Π»Π°Π³Π°Π΅Ρ ΠΏΡΠΎΠ²Π΅ΡΠ΅Π½Π½ΠΎΠ΅ ΡΠ΅ΡΠ΅Π½ΠΈΠ΅ Π΄Π»ΡΒ ΠΈΠ½Π²Π΅ΡΡΠΈΡΠΈΠΉ Π²Β Π½Π΅Π΄Π²ΠΈΠΆΠΈΠΌΠΎΡΡΡ ΡΒ ΠΌΠΎΡΡ. ΠΠ°Π²Π΅ΡΡΠ΅Π½Π½ΠΎΠ΅ ΡΡΡΠΎΠΈΡΠ΅Π»ΡΡΡΠ²ΠΎ ΠΈΒ ΡΠ°ΡΡΡΠΎΡΠΊΠ° Π±Π΅Π·Β ΡΠ΄ΠΎΡΠΎΠΆΠ°Π½ΠΈΡ Π΄Π΅Π»Π°ΡΡ ΠΏΠΎΠΊΡΠΏΠΊΡ Π΄ΠΎΡΡΡΠΏΠ½ΠΎΠΉ ΠΈΒ Π±Π΅Π·ΠΎΠΏΠ°ΡΠ½ΠΎΠΉ. ΠΠΈΠΊΠ²ΠΈΠ΄Π½ΠΎΡΡΡ ΠΎΠ±ΡΠ΅ΠΊΡΠ° ΠΏΠΎΠ΄Π΄Π΅ΡΠΆΠΈΠ²Π°Π΅ΡΡΡ Π΄Π΅ΡΠΈΡΠΈΡΠΎΠΌ ΠΏΡΠ΅Π΄Π»ΠΎΠΆΠ΅Π½ΠΈΠΉ Π²Β ΡΠ°ΠΉΠΎΠ½Π΅ ΠΡΡΠΎΠΏΠΎΡΡ. ΠΡΠ±ΠΎΡ ΡΡΠΎΠΉ ΠΊΠ²Π°ΡΡΠΈΡΡ ΠΎΠ·Π½Π°ΡΠ°Π΅Ρ Π²Π»ΠΎΠΆΠ΅Π½ΠΈΠ΅ Π²Β ΡΡΠ°Π±ΠΈΠ»ΡΠ½ΡΠΉ Π°ΠΊΡΠΈΠ².


