Параметры квартиры
О квартире
Если вы ищете комфортное жилье в городе Батуми, одним из лучших вариантов будет купить квартиру в жилом комплексе Calligraphy Towers. Это проект премиум-класса, который уже завоевал популярность среди покупателей недвижимости.
Calligraphy Towers представляет собой комфортный и просторный жилой комплекс, расположенный в экологически чистом районе Батуми. Здесь вы сможете найти квартиры различных типов и площадей, которые подходят для разных покупателей.
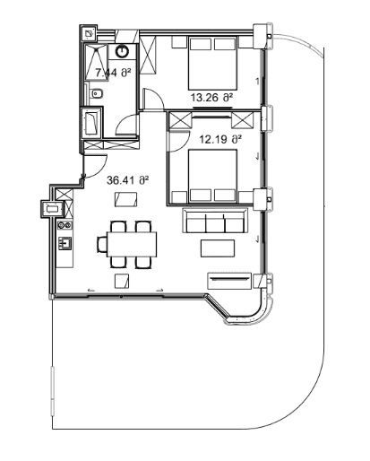
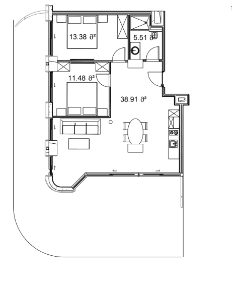
Если вы ищете недорогую квартиру в комплексе Calligraphy Towers, то вашим выбором может стать однокомнатная квартира, площадью от 30 кв.м. Если же вы планируете купить 2-комнатную квартиру, то площадь может быть до 70 кв.м. А для большой семьи подойдут 3-комнатные квартиры площадью до 125 кв.м.
Квартиры в Calligraphy Towers обеспечены всем необходимым для комфортной жизни, включая удобную планировку, современные финишные материалы и технику, системы безопасности и комфорта. Вам не придется беспокоиться о качестве жилья, так как все квартиры соответствуют высоким стандартам качества.
Если вы ищете недвижимость в городе Батуми без посредников, то такой вариант можно рассмотреть в жилом комплексе Bi Residence. Однако, если вы хотите сэкономить время и избавиться от множества хлопот, связанных с оформлением документов и поиском недвижимости, то лучше обратиться к проверенным посредникам. Компания-партнер жилого комплекса Calligraphy Towers поможет вам купить квартиру по выгодным ценам и с минимальными рисками.
Выводя итог, можно сказать, что приобретение квартиры в жилом комплексе Calligraphy Towers - это отличная возможность получить комфортное жилье в лучшем районе Батуми. Выберите подходящий вариант, который соответствует вашим потребностям и бюджету, и наслаждайтесь уютной атмосферой вашего нового дома!
О жилом комплексе
- Studios:
- from $ 56 430
- 1-room apartments:
- from $ 61 746
- 2-room apartments:
- from $ 105 000
- 3-room apartments:
- from $ 109 800
- 4-room apartments:
- from $ 205 030
- Cost per m²:
- from $ 900 m²
- Apartments:
- from 34.2 to 146.7 m²
- Floors:
- 18
- Name in Russian:
- Би Резиденc
- Distance to the sea:
- 120 m







