Квартиры в проекте передаются с готовой отделкой и базовым оснащением кухонь, что минимизирует дополнительные вложения на старте аренды. Подобный подход ускоряет выход объекта на рынок и снижает риски простоя, сохраняя рентабельность вложений в условиях растущего туристического потока Батуми. Формат комфорт-плюс предполагает использование качественных материалов и продуманную эргономику планировок, соответствующую требованиям современных арендаторов. Готовое жильё становится удобным решением для инвесторов, ориентированных на быструю капитализацию без этапа ремонта.
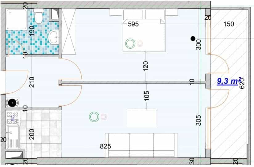
Метраж около 63.1 м² оптимален для формирования многофункциональной среды, где гостиная и кухонная зоны работают как единое целое. Подобная конфигурация востребована экспатами, ищущими комфортные условия для жизни в развивающемся районе Батуми. Наличие панорамного остекления расширяет визуальные границы интерьера, компенсируя стандартные параметры площади. Такой формат жилья поддерживает высокие ставки долгосрочной аренды за счёт сочетания практичности и эстетических характеристик комплекса.
Расположение на 11 этаже обеспечивает максимальное удобство доступа к общественным зонам и подземному паркингу комплекса. Подобный уровень минимизирует зависимость от лифтовых систем и ускоряет ежедневные маршруты, что востребовано резидентами с активным городским ритмом. Видовые перспективы ориентированы на благоустроенные дворы без машин, сохраняя визуальную привлекательность пространства. Нижний ярус формирует стабильный микроклимат, снижая температурные перепады в условиях приморской погоды.
Параметр $132 510 демонстрирует рациональное соотношение метража, этажности и локации в развивающемся кластере Батуми. Стоимость жилья компенсирует затраты на содержание закрытой инфраструктуры и профессиональную управляющую компанию, обеспечивая бесперебойную работу сервисов. Инвестиционная привлекательность поддерживается свободным форматом собственности для иностранцев и поэтапной сдачей корпусов. Цена остаётся конкурентной на фоне аналогичных предложений, сохраняя потенциал роста при завершении проекта.
Рассмотренные параметры квартиры интегрированы в архитектуру вертикального сообщества, где каждый элемент отвечает требованиям комфорта и ликвидности. Близость к морю на расстоянии 950 метров и развитая инфраструктура Багратиони создают устойчивую среду для проживания. Готовая отделка и профессиональное управление комплексом упрощают процесс эксплуатации. Для уточнения деталей по планировкам и условиям приобретения доступна консультация с экспертом проекта.



