Приобретение жилья в Calligraphy Towers рассматривается как инструмент формирования пассивного дохода с прогнозируемым ростом стоимости. Дефицит предложения в сегменте высотных апартаментов с готовой отделкой на расстоянии менее километра от моря обеспечивает устойчивую арендную заполняемость. Поэтапная реализация проекта подтверждает надёжность вложений и репутацию застройщика на рынке Батуми. Горизонт планирования от трёх до пяти лет позволяет зафиксировать увеличение ликвидности по мере завершения строительных работ и насыщения района инфраструктурой.
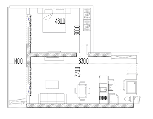
Метраж около 54.5 м² оптимален для формирования многофункциональной среды, где гостиная и кухонная зоны работают как единое целое. Подобная конфигурация востребована экспатами, ищущими комфортные условия для жизни в развивающемся районе Батуми. Наличие панорамного остекления расширяет визуальные границы интерьера, компенсируя стандартные параметры площади. Такой формат жилья поддерживает высокие ставки долгосрочной аренды за счёт сочетания практичности и эстетических характеристик комплекса.
Расположение на 25 этаже создаёт оптимальный баланс между высотой обзора и комфортом повседневного использования пространства. Подобный уровень изолирует квартиру от уличного шума проспекта Жиули Шартава, сохраняя при этом лёгкий доступ к инфраструктуре комплекса. Панорамное остекление на данной высоте раскрывает виды на развивающийся квартал Багратиони, не перегружая восприятие прямым солнечным светом. Средний ярус демонстрирует стабильную ликвидность благодаря универсальному спросу арендаторов.
Параметр $106 275 демонстрирует рациональное соотношение метража, этажности и локации в развивающемся кластере Батуми. Стоимость жилья компенсирует затраты на содержание закрытой инфраструктуры и профессиональную управляющую компанию, обеспечивая бесперебойную работу сервисов. Инвестиционная привлекательность поддерживается свободным форматом собственности для иностранцев и поэтапной сдачей корпусов. Цена остаётся конкурентной на фоне аналогичных предложений, сохраняя потенциал роста при завершении проекта.
Объект недвижимости сочетает функциональность метража с преимуществами локации в развивающемся квартале Багратиони. Архитектура с восточными мотивами, благоустроенные дворы и коммерческие помещения на первом уровне создают комплексную жилую среду. Свободный формат собственности и поэтапная реализация обеспечивают прозрачность вложений. Для анализа соответствия квартиры индивидуальным задачам предусмотрена информационная консультация без обязательств.


