Жилой комплекс Geuz Towers в Кобулети представляет собой современный проект премиального формата, расположенный всего в 50 метрах от береговой линии. Две величественные 45-этажные башни, объединенные общим стилобатом, формируют архитектурный облик района и предлагают резидентам уровень сервиса пятизвездочного отеля. Проект от застройщика с 25-летним опытом ориентирован на создание высоколиквидных активов, объединяя жилое пространство с развитой курортной инфраструктурой. Концепция mixed-use позволяет гармонично сочетать приватность апартаментов с доступом к панорамным бассейнам, SPA-центру и фитнес-залам, что делает объект востребованным для круглогодичного владения.
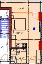
Объект площадью 38.4 м² спроектирован с учетом максимальной функциональности для комфортного отдыха. Рациональное использование каждого метра позволяет выделить зону для сна и отдыха, сохраняя ощущение простора за счет панорамного остекления. Такой формат удобен для пар или индивидуальных путешественников, ценящих близость к морю и инфраструктуре 5*.
Расположение на 12 этаже обеспечивает жителям быстрый и удобный доступ ко всей инфраструктуре стилобатной части комплекса. Близость к выходу на пляж, бассейнам и фитнес-центру делает проживание здесь максимально динамичным. Это отличный выбор для активных людей, которые ценят возможность оказаться у моря или в SPA-центре Geuz Towers всего за пару минут.
Оценка квартиры в $92 928 продиктована дефицитом участков на первой береговой линии и масштабом 45-этажных башен. Локация в Кобулети с чистым морем и близостью к Батуми добавляет объекту дополнительную ценность. Учитывая активную фазу строительства и развитие района, текущая цена является выгодной точкой входа для приобретения недвижимости с потенциалом роста капитализации.
Апартаменты в двух 45-этажных башнях Geuz Towers становятся эталоном современного прибрежного жилья с панорамными бассейнами и SPA-центром. Продуманный формат mixed-use и близость к пляжу обеспечивают высокое качество жизни и отдыха для каждого резидента. Узнать больше о проекте и деталях приобретения апартаментов можно через официальные каналы связи.



