Масштабный проект Geuz Towers в Кобулети выделяется своей этажностью и продуманным зонированием территории. Две 45-этажные башни предлагают широкий выбор планировочных решений с панорамными видами, которые остаются неизменными благодаря расположению на первой линии. Единый стилобат комплекса служит базой для размещения коммерческой и социальной инфраструктуры, создавая удобную платформу для жизни и бизнеса. Использование современных фасадных решений и качественных строительных материалов подчеркивает статус объекта. Такой архитектурный подход позволяет рационально использовать прибрежную территорию, предоставляя резидентам максимум открытых пространств для отдыха, включая бассейны и террасы на крыше.
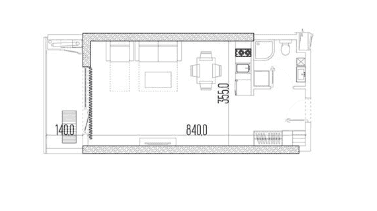
Объект площадью 38.9 м² спроектирован с учетом максимальной функциональности для комфортного отдыха. Рациональное использование каждого метра позволяет выделить зону для сна и отдыха, сохраняя ощущение простора за счет панорамного остекления. Такой формат удобен для пар или индивидуальных путешественников, ценящих близость к морю и инфраструктуре 5*.
Расположение на высоком 34 этаже открывает захватывающие дух панорамы на море и горы, доступные лишь в немногих проектах Кобулети. Из окон башен Geuz Towers на этой высоте побережье просматривается на многие километры, создавая ощущение безграничного пространства. Это эксклюзивное преимущество для тех, кто ищет жилье с лучшими видовыми характеристиками в регионе.
Цена предложения в размере $97 250 полностью обоснована уникальным расположением на первой линии и готовностью апартаментов с отделкой под ключ. Покупатель приобретает не просто квадратные метры, а полноценный курортный актив с доступом к 5* инфраструктуре. Отсутствие необходимости в ремонте позволяет сразу начать эксплуатацию объекта, экономя время и дополнительные ресурсы.
Выбор апартаментов в этом комплексе гарантирует жизнь в тихом курортном районе с чистым морем и быстрым доступом к инфраструктуре Батуми. Проект Geuz Towers успешно решает задачу создания комфортной среды для отдыха и инвестиций в 50 метрах от пляжа. Уточнить технические характеристики и текущий статус строительства можно в рамках информационного запроса.



