Квартира в данном жилом комплексе является частью масштабного проекта от Horizons Group, компании с подтвержденным опытом реализации премиальных кейсов в Аджарии. Lagoon Resort строится как современная экосистема, где архитектурные решения гармонируют с береговым ландшафтом и обеспечивают высокую энергоэффективность здания. Выбор этого объекта обоснован дефицитом свободных участков под застройку на первой линии, что исключает риск перенасыщения предложения в будущем. Инвесторы выбирают данный проект за надежность застройщика и продуманную концепцию mixed-use, объединяющую комфорт частного жилья и преимущества первоклассного гостиничного сервиса.
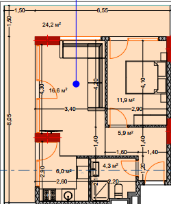
Объект площадью 72.4 м² обеспечивает идеальный баланс между стоимостью владения и уровнем комфорта в ЖК Lagoon Resort. Данный формат позволяет организовать уютную гостиную и спальную зону, что делает его привлекательным для семейных пар. Наличие развитой инфраструктуры комплекса, включая подземный паркинг и рекреационные зоны, дополняет преимущества такого метража, обеспечивая высокое качество жизни на побережье.
Расположение на среднем 4 этаже считается «золотым стандартом» в Lagoon Resort, предлагая оптимальное сочетание видов и комфорта. С этой высоты панорамное остекление позволяет в полной мере насладиться городским ландшафтом Нового бульвара и перспективой побережья. Это сбалансированное решение для инвесторов, так как средние этажи традиционно пользуются стабильным спросом на рынке аренды и перепродажи.
Приобретая квартиру за $166 520, вы инвестируете в формат mixed-use, который гарантирует востребованность объекта у туристов с высоким чеком. Наличие гостиничного сервиса международного уровня оправдывает заявленную стоимость, делая эксплуатацию недвижимости максимально простой для собственника. Это цена за комфорт, безопасность и возможность получения пассивного дохода в одной из самых престижных локаций Батуми.
Развитая внутренняя инфраструктура, включая бассейны и фитнес-центр, превращает эту квартиру в автономную экосистему для отдыха и жизни. Формат mixed-use и профессиональный сервис подчеркивают исключительность объекта в локации Нового бульвара. Получить полную информацию о ходе строительства и планировочных решениях рекомендуется через консультацию.



