Investing in Lagoon Resort is a strategic choice for capital preservation and passive income generation in the developing market of Adjara. The combination of a front-line location and professional management guarantees the property’s demand regardless of the season. Foreign buyers benefit from Georgia’s simplified registration procedures and the absence of real estate purchase taxes. The mixed-use format allows for diverse monetization strategies, from short-term tourist rentals to long-term residential use. Given the limited number of available plots on the New Boulevard, this project serves as a low-risk asset with high potential for organic price growth.
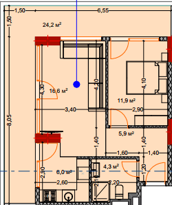
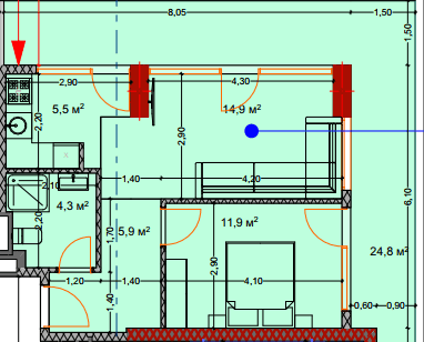
An area of 72.4 m² provides the necessary comfort for residents who plan to use the apartment for more than just short visits. The additional space allows for better zoning and storage, which is essential for a high-quality living environment on the New Boulevard. This size reflects the premium nature of the project, combining resort convenience with the practicality of a home.
Positioned on the 4 floor, this apartment offers a balanced height that combines a sense of privacy with easy access to all services. This middle-level placement provides a standard resort elevation, allowing for pleasant perspectives of the surrounding New Boulevard architecture. It is an optimal choice for those who seek a quiet environment while remaining connected to the complex’s ecosystem.
At $166,520, you are acquiring more than just square meters; you are gaining access to an autonomous ecosystem with pools, SPA, and fitness facilities. The price is justified by the full-cycle management company that handles all rental processes, making it a true passive income source. This property on the 4 floor represents a high-quality asset with a clear monetization strategy for any investor.
The high construction standards and the limited availability of plots in this district guarantee the property’s value on the secondary market. This residential complex is an optimal choice for forming a portfolio of foreign real estate with clear monetization potential. Professional consultation is available to help you assess the payback period for this specific apartment.



