Current average price per square meter at 7th Heaven Residence is below the average market indicator for Batumi. This pricing position combined with finished construction stage supports object liquidity. Prospects for real estate value growth are due to deficit of proposals on the first coastline, as objects by the sea retain value regardless of market conditions.
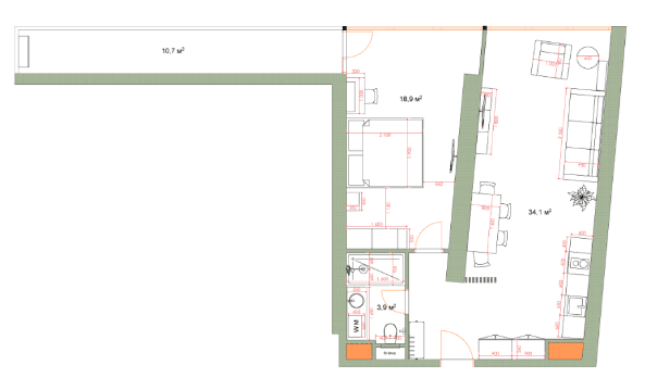
An apartment measuring 70.16 square meters provides balanced space for both rental income and personal use. One-bedroom units in this range offer comfortable living while remaining attractive to tourists seeking quality accommodation near the sea. The medium format suits investors wanting flexibility between rental operations and occasional personal stays.
Apartments positioned on the 18 floor attract diverse tenant profiles in Batumi’s rental market. Middle levels satisfy both tourists seeking views and permanent residents preferring moderate elevation. This floor range represents versatile appeal within the two-building complex completed in 2024.
The $126,288 encompasses access to complex infrastructure including swimming pool, fitness center, and 24/7 security. Management company services and commercial premises add operational convenience for rental operations. This comprehensive value proposition justifies the cost per square meter within Batumi’s resort real estate landscape.
This apartment combines first coastline positioning at 60 meters from the sea with completed construction status. The Airport district location ensures stable tourist demand while infrastructure supports comfortable living. These characteristics define the property’s value within Batumi’s resort real estate market.


