Объект недвижимости Mardi Hills расположен в стратегически важной части Батуми, обеспечивая баланс между курортной атмосферой и повседневным городским ритмом, формируя устойчивую среду для долгосрочного проживания. Разнообразие планировочных решений от одной до трёх комнат позволяет оптимизировать бюджет покупателя без потери функциональности жилого пространства и сохранения приватности отдельных зон. Прямые переговоры с разработчиком проекта упрощают процесс согласования условий и исключают скрытые комиссии посредников, делая финансовые обязательства предсказуемыми. Инфраструктурное окружение включает торговые центры, кафе и пешеходные зоны в шаговой доступности от комплекса.
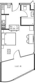
Вариант жилья площадью 38.44 м² спроектирован с учётом эффективного распределения внутренних зон, исключая неиспользуемые коридоры и технические простенки. Формат позволяет организовать полноценную жилую среду с минимальными эксплуатационными тратами, что соответствует бюджетной логике проекта. Близость к развитой инфраструктуре Батуми компенсирует небольшую квадратуру, предлагая быстрый доступ к внешним сервисам и отдыху.
Квартира на 4 уровне предлагает гармоничное сочетание визуальной открытости и акустического комфорта, снижая влияние городской суеты на повседневную жизнь и формируя стабильный фон. Подобная высота формирует стабильное восприятие жилого пространства, сохраняя при этом оперативный доступ к наземным сервисам и парковочным зонам. Локация проекта рядом с парком Петра усиливает преимущества данного расположения, обеспечивая спокойную атмосферу проживания.
Показатель $90 334 формируется как справедливое отражение качества планировочных решений и локации, позволяя сохранить баланс между стоимостью и функциональностью помещения. Прямая продажа от застройщика убирает дополнительные наценки, делая процесс приобретения предсказуемым и контролируемым для покупателя на всех стадиях оформления. Удобное расположение рядом с центральными районами и парковыми зонами подтверждает адекватность данного бюджета.
Выбор квартиры в Mardi Hills основывается на сочетании доступных планировок, прямой схемы приобретения и развитого окружения курортного района, обеспечивая предсказуемость затрат. Локация рядом с морским побережьем и центральными маршрутами формирует стабильный фон для жизни, поддерживая высокий уровень повседневного комфорта. Уточнить детали по конкретным этажам и конфигурациям можно при изучении текущей экспозиции комплекса.



