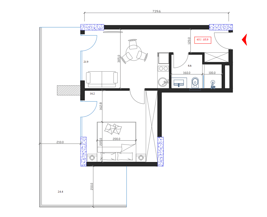
Метраж 57.4 м² представляет собой инвестицию в качество жизни с перспективой роста стоимости к сдаче проекта. Близость к морю в 75 метров и класс комфорт+ определяют высокую ценность таких квартир. Просторные планировки подходят для семейного проживания и долгосрочной аренды деловыми гостями района Аэропорта. Ограниченный объём подобных предложений в комплексе поддерживает их ликвидность на рынке.
Квартира площадью 57.4 м² предлагает баланс между функциональностью и стоимостью проживания у моря. Такой метраж удобен для семейного отдыха или длительного пребывания в курортной зоне. Расположение в районе Аэропорта упрощает логистику, а 75 метров до пляжа обеспечивают доступ к инфраструктуре. Планировка позволяет выделить отдельные зоны для сна и отдыха, повышая комфорт резидентов.
Уровень 12 этажа гарантирует стабильный микроклимат и равномерное освещение в течение дня в комплексе Marina Club. Квартиры здесь предлагают золотую середину между приватностью верхних уровней и доступностью нижних. Инфраструктура района Аэропорта остаётся в поле видимости, не нарушая тишину проживания. Это рациональный выбор для покупателей, ищущих надёжный актив с комфортными характеристиками.
Цена $69 454 включает доступ к закрытой инфраструктуре комплекса, паркингу и сервису управляющей компании. Качество отделки и современные архитектурные решения Elt Building обосновывают уровень стоимости. Расположение в 75 метрах от моря и логистика района Аэропорта добавляют ценности объекту. Покупка квартиры в Marina Club — это инвестиция в комфортную жилую среду с понятной экономической логикой.
Проект Marina Club обеспечивает комфортное проживание у моря благодаря продуманной инфраструктуре и видовым характеристикам. Расположение в районе Аэропорта и близость к пляжу в 75 метров создают уникальную среду. Класс комфорт+ и три корпуса формируют камерную атмосферу с высоким уровнем сервиса. Получить детальную информацию о доступных апартаментах можно через консультацию с представителем комплекса.



