Застройщик Batumi Investment реализует стратегию последовательного освоения ботанического района, опираясь на проверенные технологии и соблюдение регламентов строительства. Подобный подход минимизирует риски срыва сроков и обеспечивает предсказуемое качество отделки общественных зон. Инфраструктура комплекса включает бассейн, зону релакса и профессионально управляемые сервисы обслуживания. Камерный формат пятиэтажного здания позволяет сохранить архитектурную целостность района, избегая точечной уплотнительной застройки.
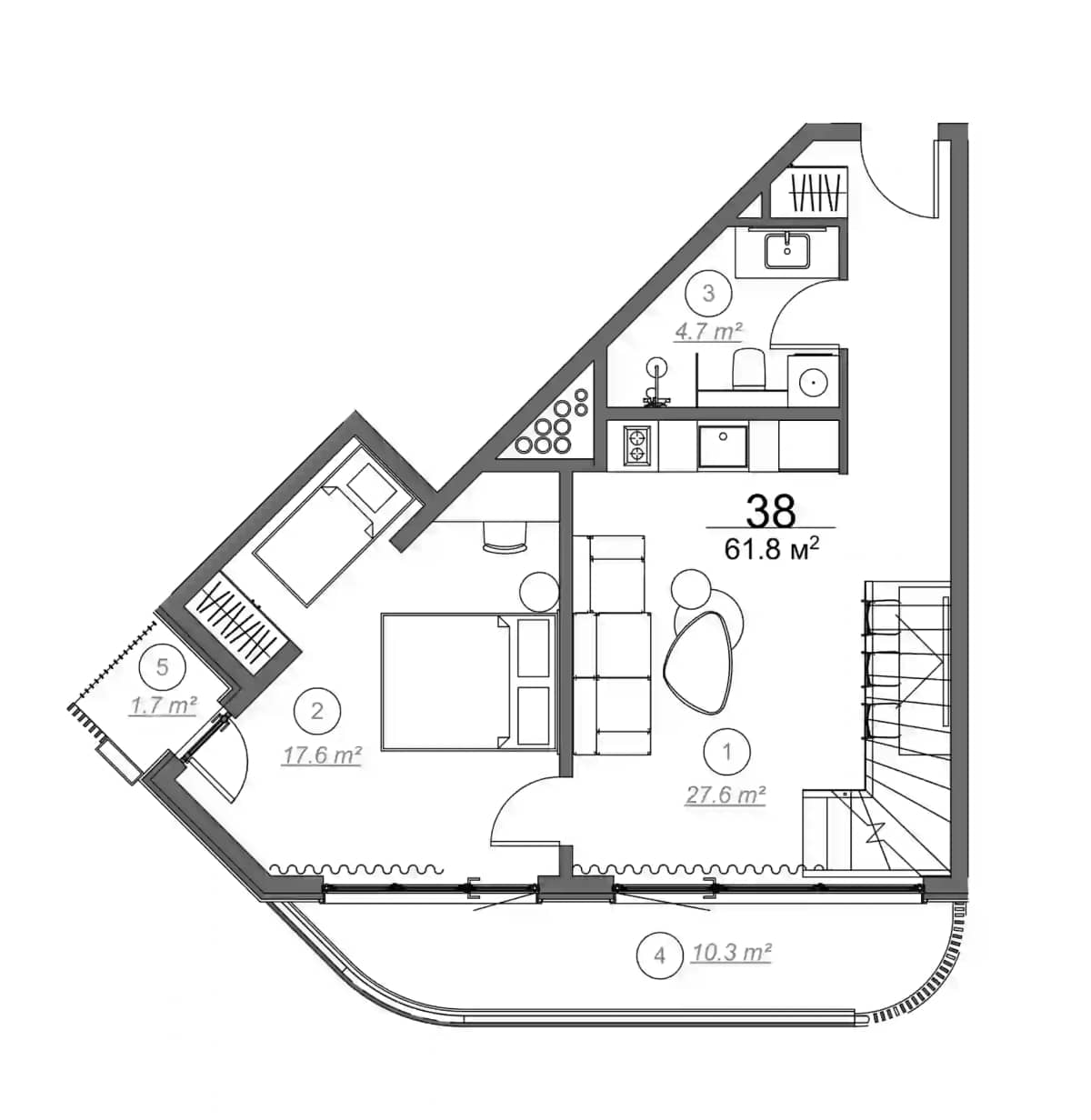
Планировка квартиры 61.8 м² обеспечивает оптимальное соотношение жилой зоны и технических помещений, что критично для длительного проживания в предгорном районе. Подобный метраж позволяет выделить отдельную рабочую зону без сокращения пространства для отдыха. Инфраструктура комплекса компенсирует потребность в выезде за пределы территории.
Верхний уровень 5 этажа гарантирует максимальную изоляцию от уличного шума и транзитных перемещений, формируя камерную среду для резидентов. В рамках закрытого проекта подобное расположение усиливает статусность жилья при сохранении полного доступа к сервисам управляющей компании. Высота оптимизирует естественное проветривание круглый год.
Значение $83 430 соответствует стратегии застройщика Batumi Investment, ориентированной на баланс доступности и премиального качества строительства. Камерная архитектура пятиэтажного комплекса исключает переплаты за избыточную инфраструктуру, сохраняя фокус на эргономике жилых пространств. Подобный ценовой сегмент устойчив к сезонным колебаниям спроса.
Объект недвижимости объединяет сбалансированную планировку, закрытую территорию и локацию в 300 метрах от побережья. Подобное сочетание характеристик формирует стабильную жилую среду, востребованную среди резидентов Батуми. Для уточнения доступных вариантов планировки и этапов оплаты рекомендуется изучить актуальную информацию у менеджера проекта.


