Цена $105 948 обоснована перспективами района Аэропорта и дефицитом качественного жилья в шаговой доступности от пляжа. Инвестиционный горизонт в 3–5 лет логичен для данного формата, учитывая развитие курортной зоны. Управляющая компания и высокий туристический поток обеспечивают стабильный арендный доход. Вложения в Marina Club защищены репутацией застройщика Elt Building и востребованностью локации.
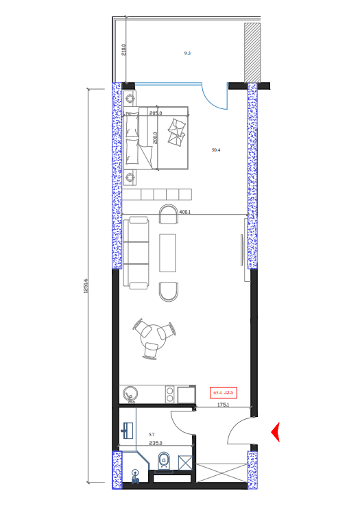
Площадь 65.4 м² формирует универсальное пространство, подходящее как для жизни, так и для сдачи внаём. Локация Marina Club в 75 метрах от моря усиливает ценность такого метража в курортном городе. Квартира обеспечивает достаточный комфорт для постоянного проживания без потери инвестиционного потенциала. Формат востребован благодаря гибкости использования и расположению в развивающемся районе Аэропорта.
Расположение на 6 этаже создаёт ощущение единства с ландшафтом и внутренней инфраструктурой проекта. Квартира на этом уровне удобна для семей с детьми благодаря лёгкому доступу к безопасным зонам отдыха. Близость к морю в 75 метров ощущается через озеленение двора без машин. Подобные объекты востребованы за счёт тишины и интеграции в курортную атмосферу комплекса.
Стоимость $105 948 оптимизирована под быструю окупаемость за счёт высокого арендного спроса в курортной зоне. Квартиры в Marina Club востребованы у туристов и экспатов благодаря близости к инфраструктуре и пляжу. Условия рассрочки без удорожания улучшают показатели доходности для инвестора. Вложения в этот проект сочетают низкий порог входа с перспективой роста капитализации актива.
Проект Marina Club обеспечивает комфортное проживание у моря благодаря продуманной инфраструктуре и видовым характеристикам. Расположение в районе Аэропорта и близость к пляжу в 75 метров создают уникальную среду. Класс комфорт+ и три корпуса формируют камерную атмосферу с высоким уровнем сервиса. Получить детальную информацию о доступных апартаментах можно через консультацию с представителем комплекса.


