Жизнь в Modern Ultra — это выбор в пользу эстетики современного модернизма и премиального комфорта на самом берегу Черного моря. Панорамные виды на морскую гладь и горы Аджарии, открывающиеся из большинства апартаментов, создают уникальную атмосферу курортного проживания. Проект ориентирован на тех, кто ценит близость к природе в лице парка имени Леха и Марии Качиньских, но не готов отказываться от преимуществ цифровой цивилизации. Сочетание морского воздуха, технологичного управления домом и доступа к высококлассному сервису делает проживание здесь качественным и безопасным, отвечая запросам как для сезонного отдыха, так и для постоянного проживания.
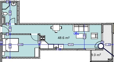
Квартира метражом 42.8 м² относится к формату среднего жилья, обеспечивающего баланс между инвестиционной привлекательностью и личным комфортом. Такая площадь позволяет организовать полноценное зонирование, выделяя спальню и гостиную для качественного отдыха. В условиях Modern Ultra этот формат востребован семьями и парами, выбирающими побережье для длительного сезонного пребывания или удаленной работы.
Расположение на 17 этаже гарантирует высокий уровень уединения, отделяя жилое пространство от активных зон первого этажа и коммерческих площадей. Уровень средних этажей в проекте Modern Ultra востребован среди цифровых кочевников, которым важна тишина для работы и панорамный обзор для вдохновения. Это золотая середина, обеспечивающая стабильную ликвидность объекта за счет его соответствия предпочтениям большинства покупателей недвижимости в Батуми.
Учитывая запланированный срок сдачи и динамику развития Нового Бульвара, цена $62 060 обладает высоким потенциалом для роста. Приобретение квартиры на этапе активного строительства по стоимости $62 060 позволяет инвестору извлечь максимальную выгоду из капитализации проекта. Это прозрачный и надежный инструмент для международного капитала, где цена $62 060 за метраж 42.8 м² подкреплена репутацией застройщика и уникальностью архитектурного решения в стиле mixed-use.
Расположение в центре Нового Бульвара и панорамное остекление с видами на море делают данный объект в Modern Ultra эксклюзивным предложением. Премиальное качество строительства и использование экологичных материалов подчеркивают статусность проекта. Эта недвижимость в первой береговой линии Батуми оптимально подходит для тех, кто ищет современные технологические решения и близость к основным туристическим и деловым кластерам города.



