Гонио традиционно считается экологическим эталоном аджарского побережья, и комплекс Montemar Gonio занимает в этой локации одно из самых выгодных положений. Близость к турецкой границе обеспечивает чистоту морских течений, а горный рельеф создает особый микроклимат. Квартира здесь идеально подходит для оздоровления и качественного отдыха всей семьей. Удаленность от промышленного шума и плотных транспортных потоков Батуми при сохранении мобильности — важное преимущество для тех, кто планирует переезд на ПМЖ или рассматривает объект для длительного пребывания. Инвестиции в экологию и качество среды проживания становятся главным трендом рынка недвижимости региона.
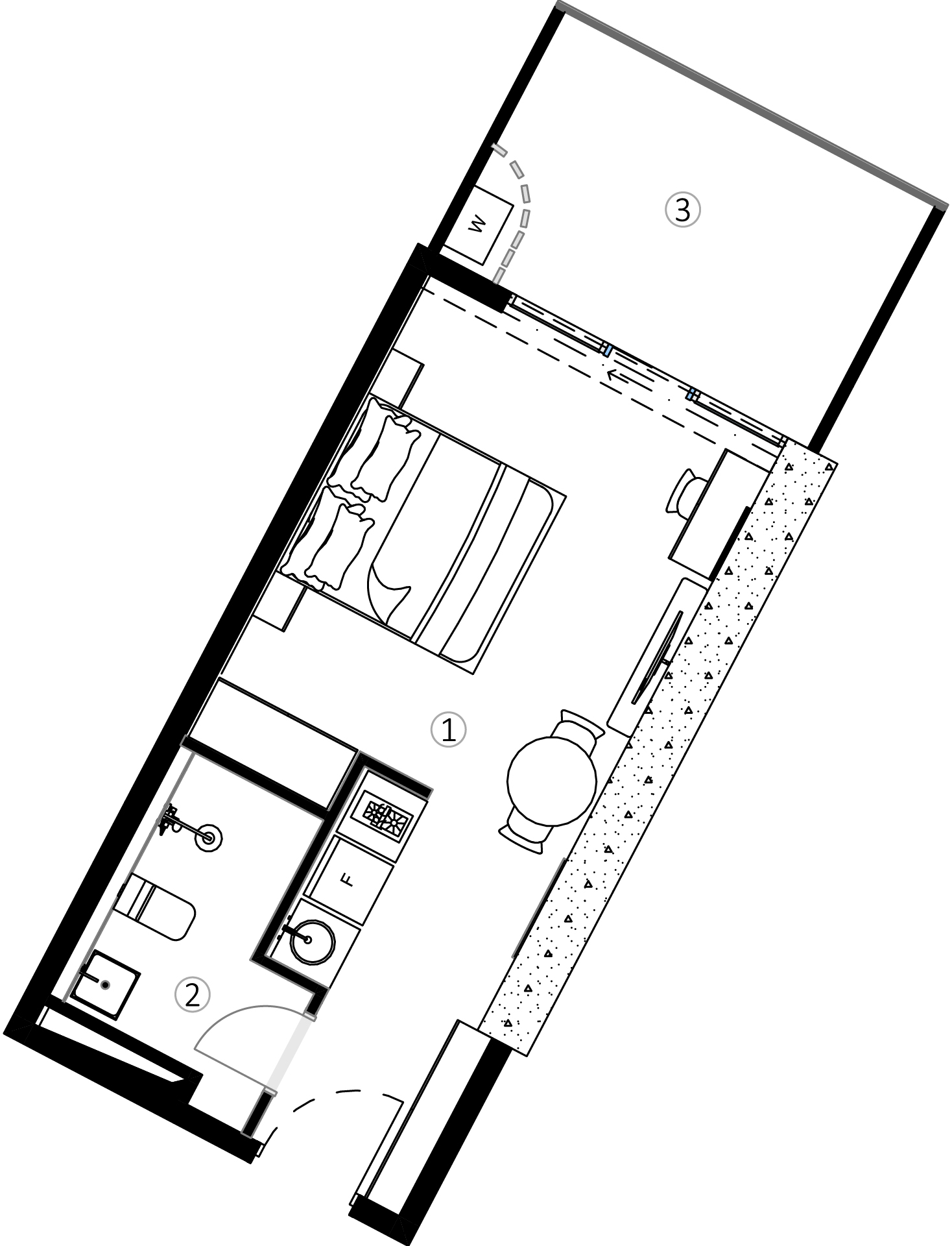
Жилое пространство площадью 38.2 м² отлично подходит для индивидуального сезонного отдыха или проживания пары. Благодаря панорамному остеклению и грамотной планировке, квартира не ощущается тесной, а функциональность помещений соответствует стандартам бизнес-класса. Подобные лоты в Гонио быстро находят арендаторов благодаря чистоте локации и высокому качеству сервиса в самом здании.
Расположение на 14 этаже позволяет в полной мере оценить современную архитектуру Montemar Gonio и окружающий ландшафт. Уровень этажа находится выше большинства соседних строений, что гарантирует стабильный приток света и ощущение свободного пространства. Квартиры на средних этажах традиционно считаются наиболее ликвидными на рынке недвижимости Батуми благодаря своей универсальности.
Цена $147 070 отражает уникальность локации в Гонио, где дефицит участков под качественную застройку на первой береговой линии постоянно растет. Приобретая квартиру по такой стоимости, вы инвестируете в район, который сохраняет статус элитного пригорода Батуми. Близость к аэропорту и чистейшие пляжи Аджарии обеспечивают объекту высокий потенциал капитализации к моменту завершения строительства.
Для жизни и сезонного отдыха Montemar Gonio предлагает высокий уровень приватности, безопасности и сервиса. Сочетание панорамных видов, чистого горного воздуха и близости к деловому центру Батуми делает проект привлекательным для долгосрочного владения. Ознакомиться с техническими спецификациями и уточнить условия приобретения недвижимости можно через информационный запрос специалистам.

