Данная квартира в комплексе Next Address спроектирована с учетом потребностей в круглогодичном комфорте, что выделяет её среди предложений курортной недвижимости Батуми. Многофункциональность проекта, включающего офисы и торговые площади, создает среду, которая живет активной жизнью вне зависимости от туристического сезона. Наличие собственной системы безопасности, подземного паркинга и фитнес-зала делает проживание здесь удобным для семей и деловых людей. Расположение на престижной Аллее Героев обеспечивает не только отличные видовые характеристики, но и близость к административному центру города. Это надежный актив, ценность которого подкрепляется качеством исполнения, развитой внутренней инфраструктурой и стратегическим местоположением в главном деловом хабе.
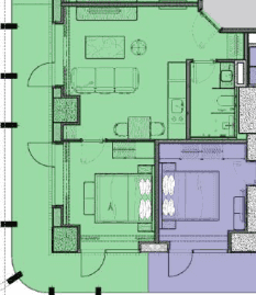
Площадь около 65.3 м² обеспечивает стабильный спрос в сегменте среднесрочной и долгосрочной аренды. В отличие от студий, такие объекты часто выбирают пары или специалисты, ценящие комфорт и наличие отдельной спальни. В проекте Next Address такая квартира становится универсальным активом, который легко сдать или использовать для собственного комфортного проживания в центре деловой активности города.
Расположение объекта на 22 этаже позволяет в полной мере оценить масштаб проекта и динамику фасадов соседних башен. Панорамные окна наполняют квартиру мягким светом, создавая комфортную атмосферу для работы и отдыха. На этом уровне достигается оптимальная приватность, так как жилое пространство находится достаточно высоко над общественными зонами подиума, сохраняя при этом ощущение сопричастности к жизни комплекса.
При цене $120 805 данный объект на 22 этаже предлагает исключительное сочетание видовых характеристик и функциональности. В сравнении с объектами на первой береговой линии, где цены часто завышены из-за сезонности, здесь вы платите за круглогодичную актуальность и деловую инфраструктуру. Это прозрачное и понятное вложение в объект от надежного девелопера с четким графиком реализации проекта.
Итоговый анализ подтверждает, что выбор в пользу Next Address — это выбор в пользу эпицентра развития города. Близость к морю, стадиону UEFA и деловым центрам Батуми создает уникальный баланс для любого сценария использования квартиры. Комплекс на Аллее Героев остается одной из самых привлекательных точек для тех, кто хочет сравнить лучшие предложения недвижимости в премиальном сегменте.



