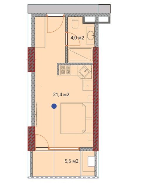
Студия, 31.3 м², 17 этаж в ЖК "OKTO Art House"
Батуми, Аэропорт, переулок Ангиса I, 73-75

О квартире
Артикул
13,538,212Номер
1711Этаж
17Комнатность
Студия
Цена
$51,019Цена / м²
$1,630Общая площадь
31.3 м²
Студии
$36,9601-комнатные
$56,875Стоимость за м²
$1,200Этажей
35Лифт
да
Лифтов
4Дополнительно
бассейн, спортзалРасстояние до моря
600 м.Район
Аэропорт
На карте
Рассрочка без удорожания
| Первый взнос | Ежемесячный платеж | Срок |
|---|---|---|
| 20% - $10,204 | $1,020 | 40 мес. |
| 15% - $7,653 | $964 | 45 мес. |


