Ramada Residences Batumi представляет собой формат брендированных резиденций, где жилой объект интегрирован в гостиничную инфраструктуру международного уровня. Проект реализуется девелопером One Development на Аллее Героев, объединяя приватность квартиры с сервисной моделью управления от River Rock. Такой подход обеспечивает владельцам не просто недвижимость у моря, а готовый продукт с понятной логикой аренды и высокой ликвидностью на вторичном рынке, что отличает комплекс от стандартных новостроек города.
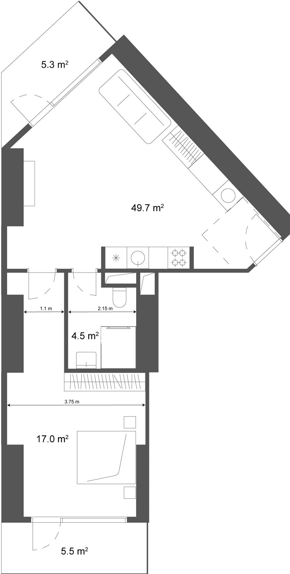
Квартира площадью 60.5 м² представляет собой баланс между компактностью и простором, предлагая отдельные функциональные зоны для сна и отдыха. Средний метраж наиболее универсален для сдачи в аренду экспатам и семьям, которые проводят в Батуми несколько месяцев. В комплексе такие лоты выигрывают за счет наличия кухни и возможности самостоятельного приготовления пищи, расширяя целевую аудиторию арендаторов.
Квартира на 23 этаже воспринимается как надежный актив с предсказуемыми характеристиками освещенности и проветривания. Среднее расположение позволяет избегать потенциальных проблем верхних уровней, сохраняя при этом хорошие видовые характеристики на город и море. Для инвестора это означает широкий пул потенциальных арендаторов, так как данный этаж не имеет специфических ограничений или предпочтений.
Стоимость $208 617 следует рассматривать в контексте долгосрочного владения, где важны качество управления и сила локации после ввода объекта. На стадии строительства цена входа позволяет зафиксировать стоимость до роста, связанного с развитием Аллеи Героев и завершением проекта в 2029 году. Рациональный подход к цене учитывает не только текущие метры, но и будущий потенциал доходности актива.
Ramada Residences занимает позицию инвестиционно-премиального сегмента, предлагая актив с прозрачной моделью спроса и без ставки только на сезон. Комплекс выигрывает у периферийных новостроек за счёт доступа к инфраструктуре города и круглогодичного трафика. Рассмотрение этого объекта целесообразно для покупателей, ищущих надежную недвижимость с поддержкой международного оператора.



