Покупка квартиры в Ramada Residences рассматривается как инвестиция в объект с прозрачной моделью эксплуатации и управлением профессиональным оператором. Проект относится к инвестиционно-премиальному сегменту благодаря сочетанию бренда Wyndham, центральной локации и полноценной гостиничной инфраструктуры внутри дома. Это позволяет собственнику использовать формат lock-and-leave, не выпадая из арендного рынка и получая доступ к сервисам уровня пятизвездочного отеля.
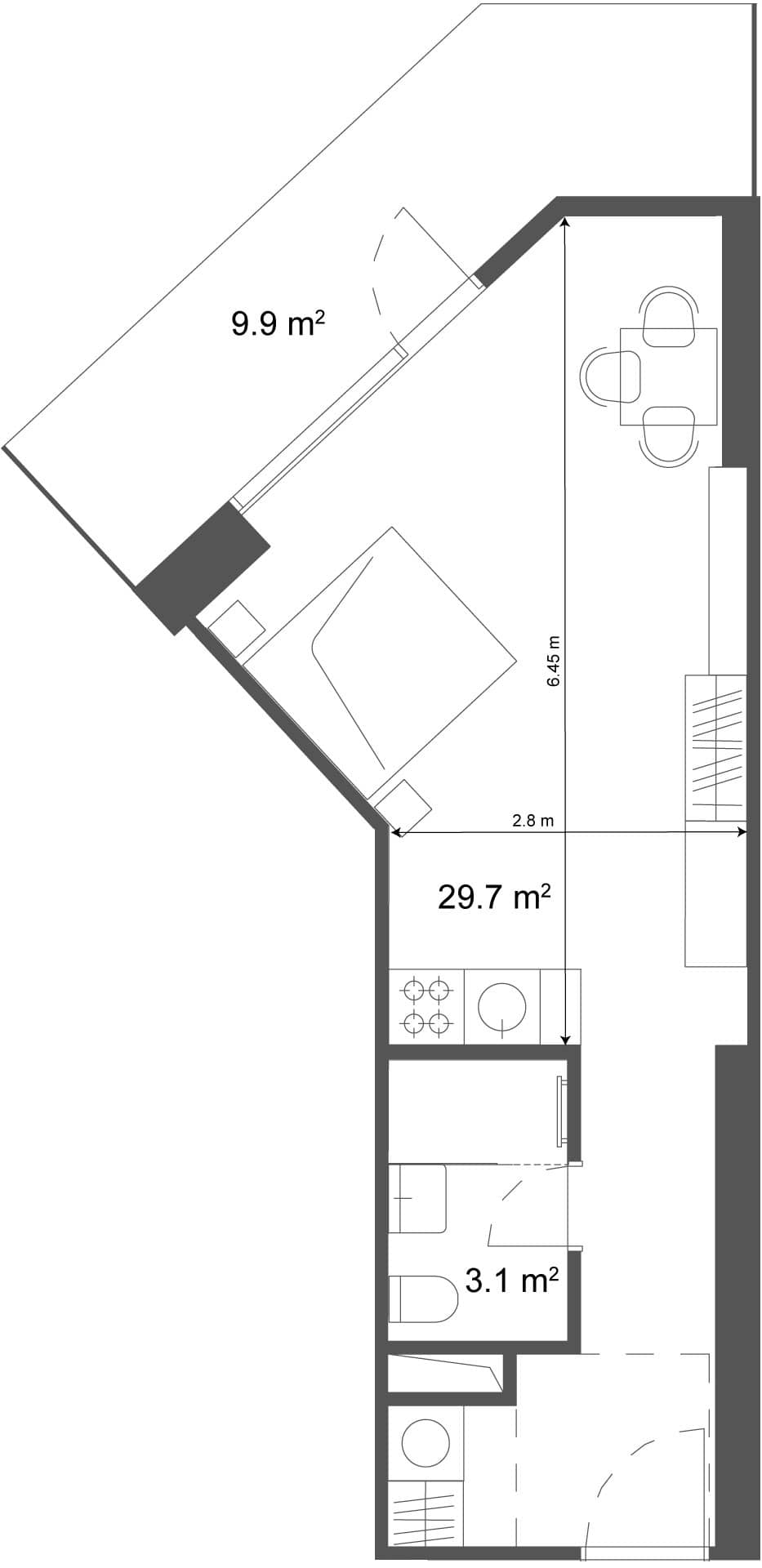
Компактное пространство площадью 39.6 м² спроектировано с учетом эргономики, включая полноценную кухонную зону, что отличает его от обычного гостиничного номера. Такой формат жилья подходит для одного человека или пары, позволяя комфортно размещаться в центральной локации Батуми. Высокая плотность застройки района делает небольшие квартиры ликвидным активом, так как спрос на бюджетное проживание у моря всегда стабилен.
Уровень этажа 30 обеспечивает комфортный микроклимат и достаточную инсоляцию, что важно для постоянного проживания в курортном климате. Квартиры на средних этажах востребованы арендаторами, которые хотят видеть город, но не стремятся к экстремальной высоте. В структуре комплекса такие лоты часто занимают основную долю предложения, подтверждая свою ликвидность и популярность на рынке.
Цена $159 102 соответствует рыночной логике инвестиционно-премиального сегмента, где важны будущая ликвидность и сила бренда. В сравнении со стандартными новостройками Батуми, стоимость здесь включает надстройку в виде профессионального управления и развитой внутренней инфраструктуры. Это делает объект понятным продуктом для покупателя из-за рубежа, ищущего надежный актив в курортном городе с открытым рынком.
Объект предлагает формат сервисной недвижимости, где арендная логика поддерживается брендом, оператором River Rock и сильным районом. Наличие кухонь и гостиничной инфраструктуры внутри комплекса создает уникальное предложение на рынке Батуми. Для получения полной информации о доступных лотах и стадиях строительства целесообразно запросить актуальную экспликацию у менеджеров проекта.


